МОДУЛЬ УПРАВЛЕНИЯ ТЕПЛОВЫМ НАСОСОМ ATW-A01
- Время доставки: 7-10 дней
- Состояние товара: новый
- Доступное количество: 4
Оплачивая «МОДУЛЬ УПРАВЛЕНИЯ ТЕПЛОВЫМ НАСОСОМ ATW-A01», вы можете быть уверены, что данное изделие из каталога «Тепловые насосы» будет доставлено из Польши и проверено на целостность. В цене товара, указанной на сайте, учтена доставка из Польши. Внимание!!! Товары для Евросоюза, согласно законодательству стран Евросоюза, могут отличаться упаковкой или наполнением.
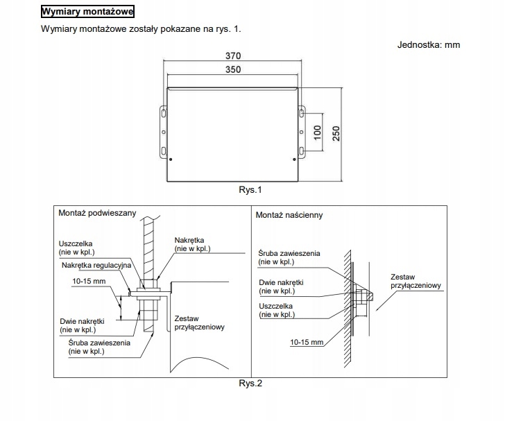
Предметом анонса является модуль управления ATW-A01, предназначенный для тепловых насосов Haier Monoblok
Haier Group — ведущий мировой поставщик решений для систем отопления, вентиляции и кондиционирования воздуха. Основана в 1984 году в Циндао. Haier поддерживает индивидуальное и устойчивое развитие своих клиентов с помощью инновационных решений с самого начала своего существования. За годы работы местная фабрика выросла в глобальную компанию, оборот которой в 2014 году достиг более 32,3 млн долларов США. Используя многолетний опыт в области охлаждения и кондиционирования воздуха, компания Haier решила также представить в своем предложении тепловые насосы «воздух-вода». Очень хорошие технические параметры, с отличным соотношением цена-качество, делают моноблочные тепловые насосы Haier успешными не только в качестве вспомогательного источника тепла, но и в качестве автономной системы отопления в наших домах.
