PSP DX 120 Основание полюса, открытое для бетона 121x107 Galvanized Domax
- Время доставки: 7-10 дней
- Состояние товара: новый
- Доступное количество: 7020
Просматривая «PSP DX 120 Основание полюса, открытое для бетона 121x107 Galvanized Domax» данный товар из каталога «Конструкционные материалы» вы можете быть уверены, что после оформления заказа, доставки в Украину, вы получите именно то, что заказывали, в оговоренные сроки и европейского качества.
PSP DX 120 Основание полюса, открытое для бетона 121x15x107x2 1 ПК оцинкованного Domax h1>
оригинальные продукты авторитетного Domax® h1>
Эта база полюса была разработана для обеспечения исключительной прочности и функциональности, что делает его отличным решением как в промышленных, так и в строительных проектах.
цена "Купить сейчас" применяется к 1 части базы столбца
Технические параметры h1>
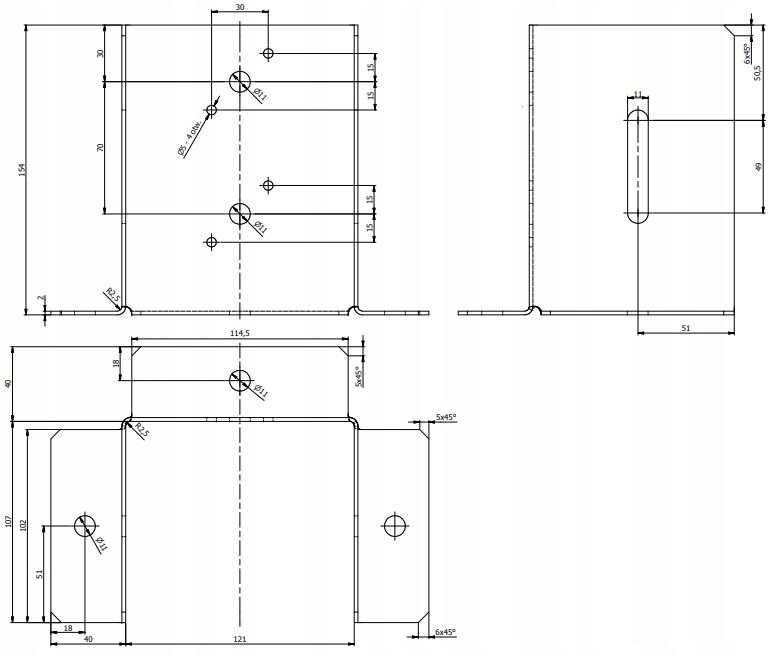
- Ширина - 121 мм
- Высота основания - 154 мм
- Глубина основания - 107 мм
-
-
- Толщина листового металла - 2 мм
-
- li>
-
-
-
-
-
-
-
-
-
-
-
-
-
-
-
-
-
- Антикоррозионная защита - серебряная оцинкованная
- Количество отверстий - 4 отверстия Ø5 мм, 5 отверстий Ø11 мм
приложение h1>
Основание полюса является элементом вклада, используемым в конструкции, и используется для поддержки и стабилизации полюса. Обеспечивает достаточное расширение древесины до земли. Основание полюса направлена на распространение сил полюса, чтобы обеспечить адекватную поддержку и предотвратить его наклонение.
крепление h1>
- Проводники для оснований полюса Ø6 мм
- Деревянные винты H6K
- Кольцевые разбросы M10
- М10 Бетонные винты и т. Д.
Технический рисунок h1>
- pspdx120 - 121x154x107x2,0 [мм]
Другие измерения вешалок, которые мы имеем в предложении h2>
- pspdx45 - 46x102x41x1,5 [мм]
- pspdx70 - 71x154x67x2,0 [мм]
- pspdx90 - 91x154747. pspdx100 - 101x154x91x2.0 [мм]
- pspdx45 - 46x102x41x1,5 [мм]
- pspdx70 - 71x154x67x2,0 [мм]
- pspdx90 - 91x154747. pspdx100 - 101x154x91x2.0 [мм]
