ASSA ABLOY DC140 ДОВІДЧИК ДЛЯ МІЖКІШНІХ ДВЕРЕЙ
- Час доставки: 7-10 днів
- Стан товару: новий
- Доступна кількість: 85
Заказывая «ДВЕРНОЙ ДОВОДЧИК ASSA ABLOY DC140 ДЛЯ МЕЖКОМНАТНЫХ ДВЕРЕЙ» данный товар из каталога «Самозакрывающиеся» вы можете быть уверены, что после оформления заказа, доставки в Украину, вы получите именно то, что заказывали, в оговоренные сроки и европейского качества.
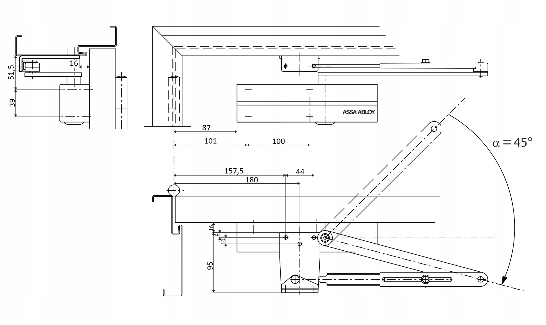
КОМПЛЕКТ ДВЕРЕЙ ДВЕРІ: доводчик DC140 з кронштейном + монтажний кронштейн
Доводчик DC140 з кронштейном для дверей шириною до 1250 мм і вагою до 100 кг. Оснащений термодинамічними клапанами для постійної продуктивності до -35°C. У набір також входить паралельний кронштейн A154, який дозволяє встановити доводчик на двері в ніші.
Основні переваги:
-
Для одинарних дверей шириною до 1250 мм і вагою до 100 кг
- Сертифіковано згідно з EN 1154, розмір 2-5
-
Підходить для протипожежних і димозахисних дверей
-
Можна використовувати для правих і лівих дверей
-
Регулювання висоти плеча до 14 мм
-
Регульована швидкість зачинення дверей, швидкість замикання та регулювання функції задньої перевірки за допомогою регулювання передніх клапанів
-
Термоклапани - стійкі до погодних умов (ІДЕАЛЬНО ДЛЯ ЗОВНІШНІХ ДВЕРЕЙ)
-
Змінне регулювання сили закриття
-
Кут розкриття до 180°
- Колір: сріблястий EV1
Підтримка паралельної руки A154
-
Підтримка встановлення паралельного плеча. Для протипожежних та димозахисних дверей.
-
При використанні з паралельною опорою для рук втрачається приблизно 15% крутного моменту (закриваючої сили).
-
Призначений для доводчиків дверей.
-
Можливість встановлення доводчика для дверей, врізаних у ламелі
-
Колір: срібний
РЕГУЛЮВАННЯ ДОВОДЧИКА:
-
Клапан "S" - регульована швидкість закриття: від 180° до 0°
-
Клапан L - регульована швидкість замикання (стиснення): від 15° до 0°
-
Клапан "BC" - Функція зворотного контролю (захист від вітру): вище 75°
- Регульована сила закривання EN 2/3/4/5 шляхом регулювання дверей ближче до петель
