ДВОКОЛОВИЙ ДОМКРАТ 5T UP LINKED TC0012-TECHWAR
- Час доставки: 7-10 днів
- Стан товару: новий
- Доступна кількість: 1
Просматривая «ДВОКОЛОВИЙ ДОМКРАТ 5T UP LINKED TC0012-TECHWAR», вы можете быть уверены, что данный товар из каталога «Столбчатые подъемники» будет доставлен из Польши и проверен на целостность. В цене товара, указанной на сайте, учтена доставка из Польши. Внимание!!! Товары для Евросоюза, согласно законодательству стран Евросоюза, могут отличаться упаковкой или наполнением.
TECHWAR
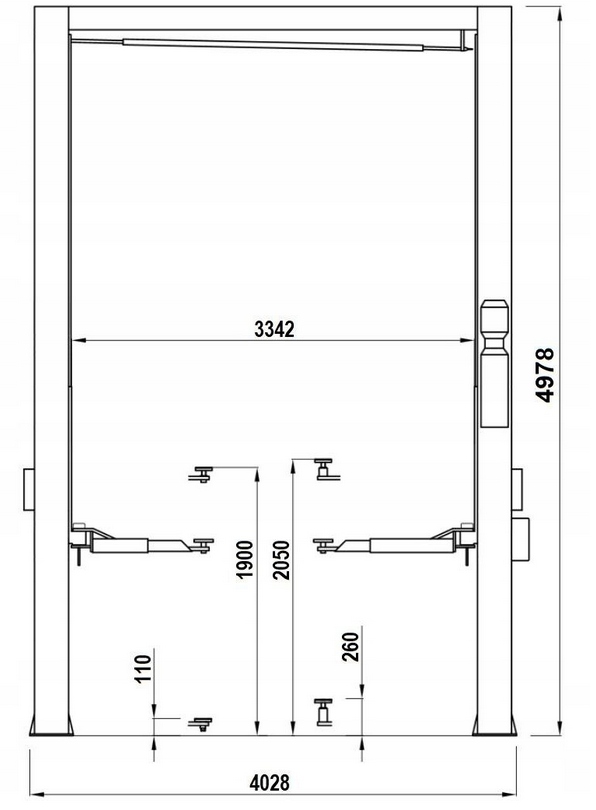
ДВОКОЛОННИЙ АВТОМАТИЧНИЙ ПІДІЙМНИК 5000 кг.
ВЕРХНЯ З’ЄДНАНА ВИСОТА 4,978 МБ. TC0012 - TECHWAR
Універсальність
Вантажопідйомність 5000кг, загальна висота 4700мм і дуже великий проміжок між колонами (3342мм) - основні переваги представленої моделі. На додаток до вищезазначеного параметри дуже довгі і міцні руки з 3-секційною телескопічною структурою. Максимальна відстань між плечами (1800 мм) необхідна для стабільного позиціонування та безпечної експлуатації транспортних засобів для доставки довгих транспортних засобів. Плечі в підйомнику асиметричні і відкидаються назовні, що забезпечує оптимальний баланс піднятого автомобіля. У стандартну комплектацію підйомника входить комплект прокладок висотою 150 мм. Вони необхідні при обслуговуванні фургонів з тентом і позашляховиків, що піднімаються за раму. Опори, розміщені під транспортним засобом, відкручуються та закріплюються на кронштейнах і прокладках.
Верхня балка
Ліфт обладнано верхньою балкою, що з’єднує колони . Завдяки подовженій конструкції колон (4700 мм) верхня балка не є перешкодою при обслуговуванні високого транспорту. У стандартних двостійкових підйомниках на рівні підлоги встановлений з’єднувач, в якому знаходяться елементи передачі приводу, такі як ланцюг, кардан, гідропроводи та ін. Залежно від виробника поріг між колонами може бути від Висота від 40 до 90 мм. Ця перешкода часто перешкоджає проїзду візка для інструментів, масляного сифону, основи коробки передач тощо. Поріг також є основною перешкодою при в'їзді на майданчик автомобілів із низьким кліренсом. Рішенням проблеми є підйомники з верхнім з’єднанням, верхня балка якого встановлена якомога вище – тому колони нашого підйомника TC0012 одні з найдовших на ринку.
Автоматичний підйомник
Перевагою автоматичного підйомника є зручне керування процесом підйому та опускання за допомогою кнопок на панелі керування, без необхідності вручну знімати замок на кожній колоні. Рішення скорочує час роботи підйомника, оскільки працівнику не потрібно переходити з іншого боку автомобіля, щоб розблокувати замок. Обидві колони мають електромагніти, які автоматично вимикають замки після натискання кнопки опускання на панелі керування.
Безпека
Система безпеки активується автоматично при підйомі автомобіль. Крім того, кінцевий вимикач зупиняє процес підйому, коли підйомник досягає максимальної висоти. Кінцевий вимикач також встановлений у найнижчому положенні підйомних візків, завдяки чому перевантаження гідравлічної системи зведено до мінімуму. Крім того, підйомні візки оснащені гумовим захистом, який захищає двері автомобіля від пошкоджень. На панелі управління є аварійний вимикач, який дозволить негайно зупинити роботу підйомника в небезпечній ситуації.
Багаторічна довговічність
Точне виготовлення компонентів забезпечує не тільки довший термін служби підйомника, але й гарантує кращий комфорт під час роботи. Спеціально розроблені електромагнітні замки гарантують тиху роботу підйомника. Висока якість використовуваних матеріалів гарантує надійну експлуатацію підйомника протягом багатьох років. Механічні елементи підйомника (ланцюг, привод, салазки, канати) захищені спеціальними кожухами, встановленими з внутрішньої сторони кожної колони. Рішення забезпечує чудову довговічність компонентів ліфта протягом усього терміну служби та виключає ризик пошкодження під час зварювання або шліфування в безпосередній близькості від машини.
Документи для Управління технічної інспекції
Усі двоколонні підйомники Techwar p
Підготовка ґрунту
Основні вимоги до підготовки ґрунту для встановлення двоколонного підйомника:
Основні розміри ґрунту: довжина – 4500мм, ширина – 1600мм, глибина – 500мм
Поверхня, на яку буде розташовуватися підйомник, повинна бути рівною і рівною.
Допустима різниця – до 0,5 см на 3 м довжини.
Грунт, на якому буде встановлено підйомник, повинен бути збірним (клас бетону В25 - В30) і сухим не менше 15 днів, що гарантує його належну стійкість.
