2 комплекта монтажных направляющих для 19-дюймовых шкафов для ИБП Power Walker VFI
- Время доставки: 7-10 дней
- Состояние товара: новый
- Доступное количество: 2
Заказывая «2 комплекта монтажных направляющих для 19-дюймовых шкафов для ИБП Power Walker VFI» данный товар из каталога «Монтажные рельсы» вы можете быть уверены, что после оформления заказа, доставки в Украину, вы получите именно то, что заказывали, в оговоренные сроки и европейского качества.
Набор направляющих RK3 для шкафов RACK 19 для ИБП PowerWalker 10120507
☆ выдвижной ☆ регулируемый ☆ для блоков питания серий VFI RM / VFI CRM / VFI CRS / VFI RMG / VFI R1U
ОПИСАНИЕ И ПРИМЕНЕНИЕ:
Набор регулируемых направляющих RK3 (Rack-Kit) предназначен для монтажа устройств СТОЙКИ ИБП внутри 19-дюймового шкафа RACK. Фронтальный монтаж к вертикальным направляющим шкафа. Регулировка 470–740 мм, что означает, что он подходит для большинства напольных шкафов глубинойот 800 мм до 1000 мм. Идеально подходит для стоечных источников бесперебойного питания PowerWalker серий VFI 1000-3000 RM, VFI 1000-3000 RMG, VFI 1000-3000 CRM, VFI 1000-3000 CRS, VFI 1000 R/1U.
САМЫЕ ВАЖНЫЕ ХАРАКТЕРИСТИКИ:
- размеры: 470 x 39 x 426 мм,
- цвет: серебристый,
- вес: 1,58 кг,
- содержимое упаковки: левая и правая направляющие стойки (по 2 детали с каждой стороны), винты для стойки (12x M6*12), гайки (6x M6), инструкция по установке,
совместимые модели:
- VFI 1000-3000 серия RM,
- VFI 1000-3000 серия RMG,
- VFI серия 1000-3000 CRM,
- Серия VFI 1000-3000 CRS,
- Серия VFI 1000 R/1U,
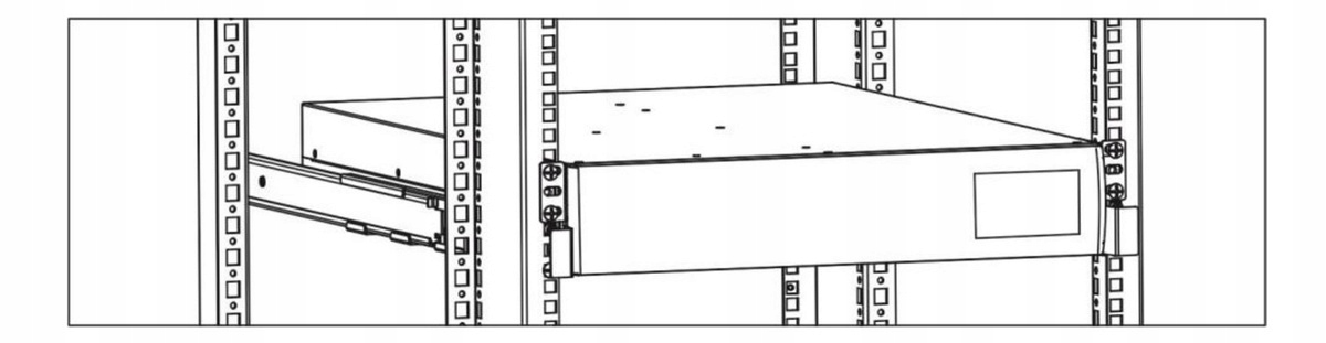
ИНСТРУКЦИИ ПО УСТАНОВКЕ НАПРАВЛЯЮЩИХ:
Шаг 1: Вставьте монтажные штифты в следующие места направляющих. Убедитесь, что вы надежно закрепили их. Затем разведите два конца направляющих в стороны. Убедитесь, что расстояние удлинения соответствует монтажной глубине шкафа, и вставьте монтажные штифты в соответствующие отверстия направляющих RACK.
Шаг 2. С помощью винтов M6 прикрепите направляющие к конструкции стойки. См. изображение ниже:
Шаг 3. В зависимости от высоты ИБП разместите 6 корзин M6 в соответствующем месте.
Шаг 4. Установите ИБП с проушинами на кронштейне направляющей.
Шаг 5. Закрепите ИБП на месте с помощью 4 винтов M6.
Шаг 6: Сборка завершена. ИБП установлен правильно.
