Гелевий люк. D400 з телескопом для гофротруби 400
- Время доставки: 7-10 дней
- Состояние товара: новый
- Доступное количество: 99994
Оплачивая «Гелевий люк. D400 з телескопом для гофротруби 400» данное изделие из «Крышки и люки» вы можете быть уверены, что после оформления заказа, доставки в Украину, вы получите именно то, что заказывали, в оговоренные сроки и европейского качества.
Люк смотровой чугунный Д400-40т
с телескопом 315 мм
для колодцев (гофрированная шахтная труба) 315 400 425мм
Телескоп 315 с чугунным люком класса Д400.
Телескоп предназначен для использования в системах наружной канализации. Идеально подходит как элемент дренажной системы территории, как элемент поглотительного колодца или подземного резервуара для дождевой воды.
Телескоп поставляется без прокладки.
Телескоп с чугунным лазом совместим с колодцами (гофрированными подъемными трубами) системы 315 (необходимо приобрести прокладку), а также 400 и 425 (необходимо приобрести соответствующую переходную втулку: 400х315 или 425х315).
р>Прокладки и манжеты приобретаются отдельно.
ВАЖНО! Поверхностная коррозия чугунных колодцев и водостоков является естественным явлением и не является основанием для рекламаций.
Продюсер: Норсон.
Технические параметры:
- внешний диаметр телескопической трубы: 315 мм,
- длина телескопической трубы: 500 мм,
- размеры люка (внешние): 355x355 мм (квадрат)
- диаметр люка: 288 мм
- диаметр отверстия: 260 мм
- Класс люка: D400 - 40 тонн
- Тип крышки: полный
- защитный люк: два винта (шестигранный ключ)
- вес: 24 кг
Телескоп изготовлен в соответствии со стандартом PN-EN 124.
Класс Д400 - 40 тонн применение: уличные дороги, пути сообщения с интенсивным движением, стоянки, в том числе для грузовых автомобилей
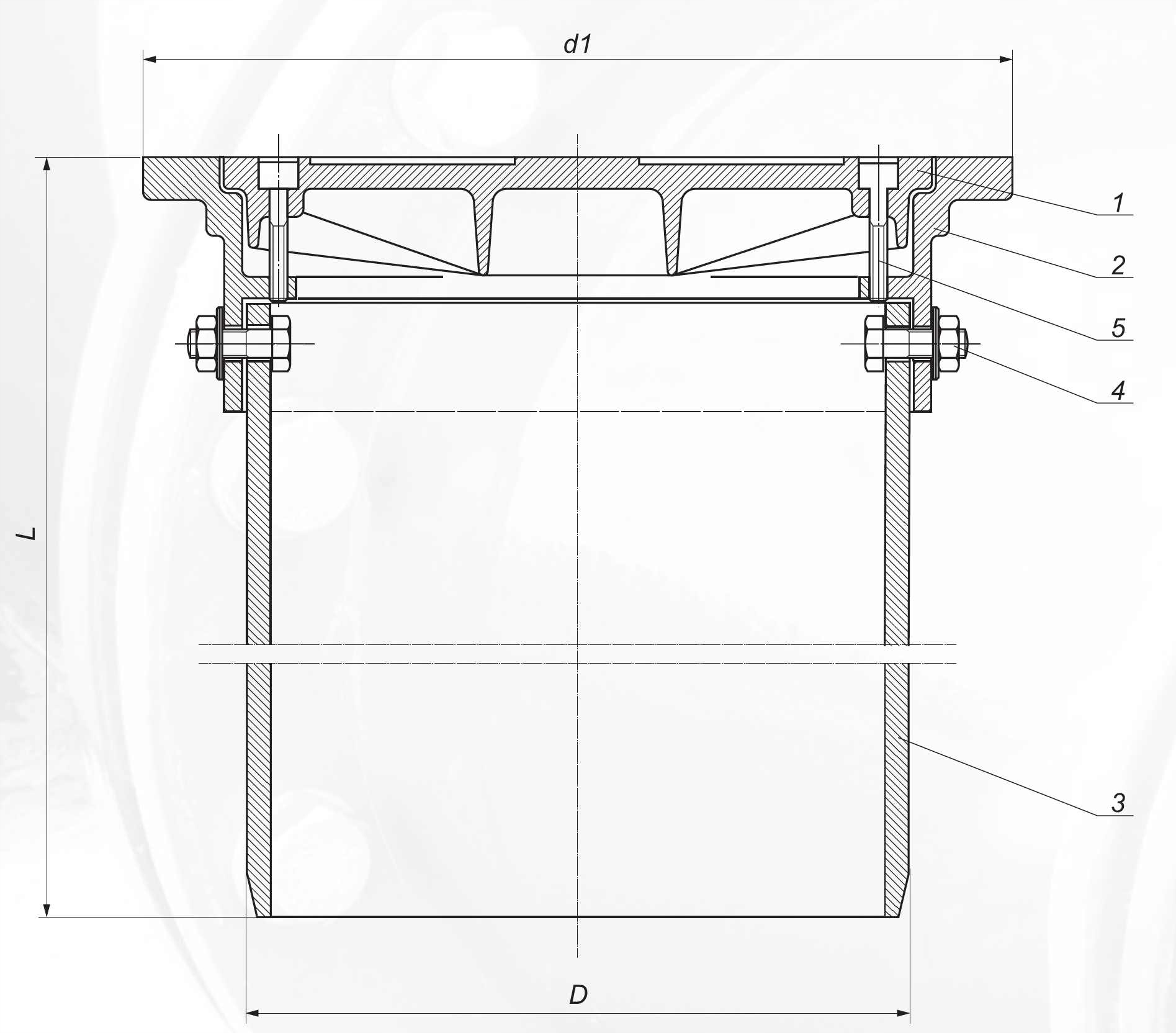
Технический чертеж:
Легенда и описание:
<р>1. Крышка* EN-GJL-250 <р>2. Корпус EN-GJL-250 <р>3. Труба ПВХ 315 <р>4. Винт, гайка, шайба Класс цинка 8,8 <р>5. Винт с внутренним шестигранником Оцинкованный класс 8,8/нержавеющая сталь A2Д= 315 мм
Д = 550 мм
d1= 355 мм
