SAS BIO COMPACT 17 KW PLUS - вищий стандарт
- Время доставки: 7-10 дней
- Состояние товара: новый
- Доступное количество: 1
Оплачивая «SAS BIO COMPACT 17 KW PLUS - вищий стандарт», вы можете быть уверены, что данное изделие из каталога «Котлы и печи» будет доставлено из Польши и проверено на целостность. В цене товара, указанной на сайте, учтена доставка из Польши. Внимание!!! Товары для Евросоюза, согласно законодательству стран Евросоюза, могут отличаться упаковкой или наполнением.
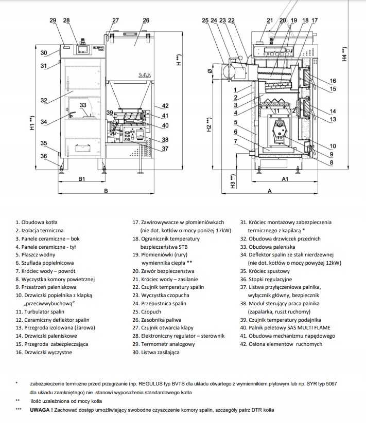
ТЕХНИЧЕСКИЕ ХАРАКТЕРИСТИКИ
<ул>SAS BIO COMPACT PLUS - ХАРАКТЕРИСТИКИ КОТЛА
✅котел более высокого стандарта - для более высокой субсидии по программе «Чистый воздух»
✅соответствует требованиям требованиям класса 5 (высший) по стандарту PN-EN 303-5:2012 по тепловой эффективности, предельным значениям выбросов загрязняющих веществ, ограничительным требованиям безопасности
✅соответствует требованиям экодизайна ( EcoDesign), указанный в Регламенте Комиссии (ЕС) 2015/1189 от 28 апреля 2015 г. о реализации Директивы 2009/125/EC Европейского Парламента и Совета относительно требований экодизайна для твердотопливных котлов
✅возможность участия в программах софинансирования покупки котла
✅компактные размеры, позволяющие установить и эксплуатировать в небольшой котельной
✅доступен в версии с дымоходом назад или дымоходом вверх
✅простая очистка и работы
✅мощность: 10кВт, 12кВт, 17кВт, 20кВт, 25кВт
✅класс энергоэффективности А+
✅высокий КПД 91,7÷93,9% и КПД процесс горения благодаря использованию каналов дымовых газов в конструкции жаровых труб (труб) теплообменника и керамических панелей непосредственно над камином
✅ Пеллетная горелка SAS MULTI FLAME (самоочищающаяся), на которую распространяется Закон об охране № 67681 выдан Польским патентным ведомством.
- конструкция камина, позволяющая снизить выбросы пыли до уровня, не превышающего 20 мг/м3.
- сжигание биомассы в виде прессованной древесины. гранулы - пеллеты
- механическая защита от возврата пламени в топливный бак (два транспортных шнека, разделенные перегрузочным каналом)
- li>
- автоматическая подвижная решетка очистки дутьевой печи (датчик контроль положения колосниковой решетки - датчик Холла)
- автоматический розжиг топлива: ТЭН (электрозапальник)
- элементы топки из нержавеющей стали
- li>
- датчик температуры питателя
- фотоэлемент (датчик пожара) – контроль наличия пламени (контроль, в том числе, процесс розжига на основе прямого изображения состояния печи)
- вентилятор обдува с системой регулирования расхода воздуха (AIR FLOW CONTROL) - точное регулирование количества воздуха и коррекция дозы топлива
✅топливный бак с датчиком открытия заслонки
✅защитный ограничитель температуры СТБ
✅конструкция двери способствует снижению теплопотерь в котельной ( конструктивное решение смотровых отверстий подпадает под действие Закона об охране № 68867, выданного Патентным ведомством РП)
✅ элементы котла из нержавеющей стали
✅ защита камеры сгорания - керамические панели на боковая стенка котла
✅ функциональный контроллер с цветным сенсорным экраном, поддержка четырех циркуляционных насосов, двух смесительных клапанов, погодный контроль, встроенный Ethernet-модуль, ПИД-алгоритм и возможность подключения помещения регулятор
