Aco відокремлений сепаратор Oleolift p Вільне місце NS 6/600 Моно 6м
Код: 17722096915
168283 грн
Ціна вказана з доставкою в Україну
Товар є в наявності
ЯК ЕКОНОМИТИ НА ДОСТАВКЕ?
Замовляйте велику кількість товарів у цього продавця
Інформація
- Час доставки: 7-10 днів
- Стан товару: новий
- Доступна кількість: 1
Просматривая «ACO отдельный сепаратор Oleolift P Отправленные NS 6/600 Mono 6m» данный товар из каталога «Очистные сооружения», вы можете получить дополнительную скидку 4%, если произведете 100% предоплату. Размер скидки вы можете увидеть сразу при оформлении заказа на сайте. Внимание!!! Скидка распространяется только при заказе через сайт.
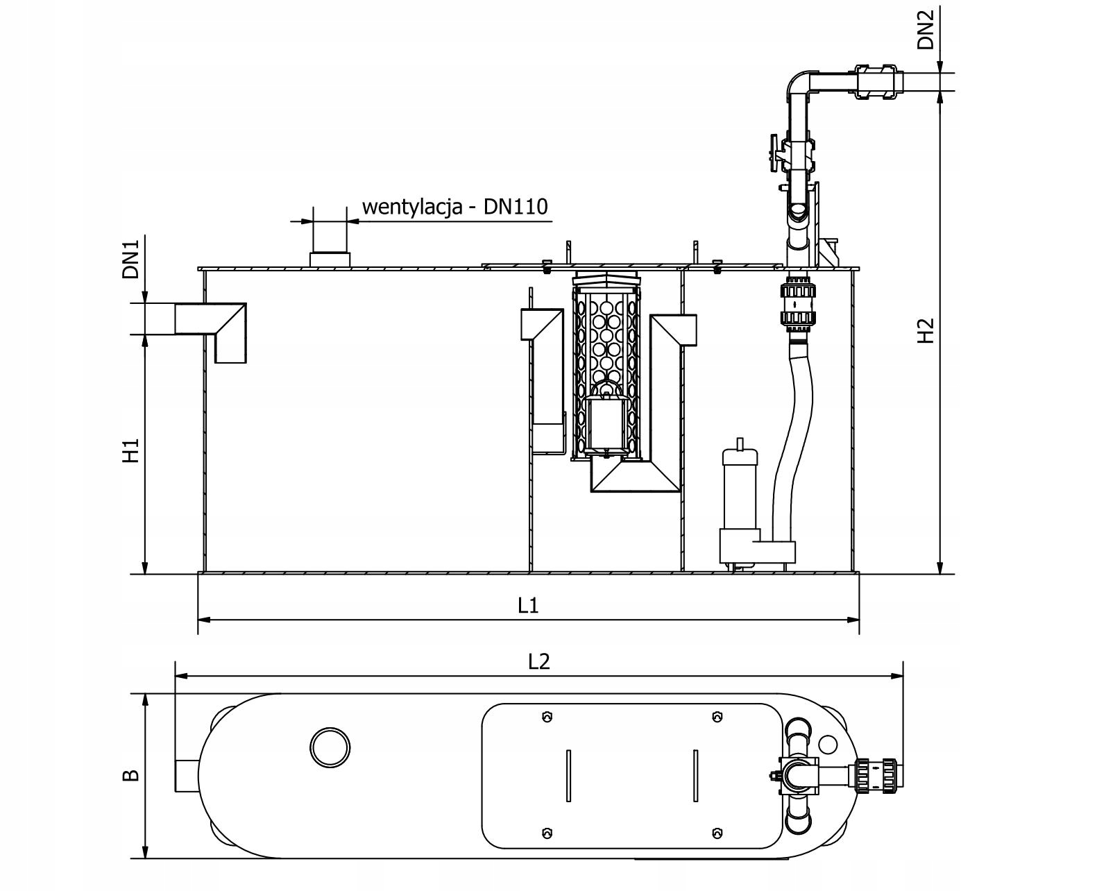
aco відокремлений сепаратор Oleolift p Вільне розташування NS6/600 MONO 6M
кіт. №: 418604.p106
форма: овальна
поселенця: 600 (l)
ємність журналу. Олія 129 (l)
макс. Товщина масляного шару: 401 (мм)
Загальна ємність: 977 (L)
Вага: 110 (кг)
