АВТОМАТИЧНА МОНТАЖНА РУКА RUNFLAT
- Час доставки: 7-10 днів
- Стан товару: новий
- Доступна кількість: 3
Заказывая «АВТОМАТИЧНА МОНТАЖНА РУКА RUNFLAT» данный товар из каталога «Монтажные установки», вы можете получить дополнительную скидку 4%, если произведете 100% предоплату. Размер скидки вы можете увидеть сразу при оформлении заказа на сайте. Внимание!!! Скидка распространяется только при заказе через сайт.
Допоміжний важіль для автоматичного шиномонтажного пристрою
Код: CAM-113/505
Універсальний допоміжний важіль для автоматичних шиномонтажних установок, що підтримує тиск у шинах під час розбирання та складання. Для стандартних, низькопрофільних шин і шин Runflat.
Опорний кронштейн, який є аксесуаром, був розроблений для полегшення встановлення та демонтажу шин, особливо низькопрофільних шин, посилених шин C-типу та спущені шини Run-Flat.
БУДІВНИЦТВО
ВСТАНОВЛЕННЯ
Установіть стабілізуючу ніжку C до корпусу важеля A. Після встановлення важеля в машину використовуйте гайку B, щоб протистояти ніжці.
Від'єднайте шиномонтажний станок від джерела подачі повітря та електрики.
Покладіть корпус A на корпус шиномонтажного агрегату M, вирівняйте монтажні отвори в обох елементах.
Прикрутіть корпус кронштейна до корпусу шиномонтажного пристрою в горизонтальній площині за допомогою гвинтів F (M10x35 мм), використовуючи пружинні шайби E і плоскі шайби D. Не затягуйте гвинти повністю, залиште простір між корпусами прикручуваних елементів.
Прикрутіть корпус важеля до вертикальної площини корпусу чейнджера за допомогою гвинтів G (M10x35 мм), використовуючи пружинні шайби H і плоскі шайби I. Не затягуйте гвинти повністю, залиште простір між корпусами елементів, що прикручуються.
Вставте розпірну пластину J між корпусом важеля та корпусом шиномонтажного пристрою. Затягніть усі гвинти.
Відрегулюйте положення стабілізуючої ніжки C і перевірте налаштування за допомогою гайки B(M16).
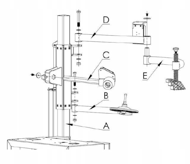
Встановіть три важелі B, C і D до рухомої каретки важеля A, як показано на малюнку.
Встановіть другий сектор двостороннього важеля E на частину D, як показано на малюнку. малюнок.
Протягніть пневматичний шланг (8 мм) Q через отвір у бічній стінці корпусу машини в машину.
Відкрийте бічний корпус шиномонтажного пристрою та знайдіть 8-міліметровий пневматичний трійник, розташований на магістральній лінії подачі стисненого повітря, він розділяє лінію подачі повітря від блоку підготовки повітря на дві окремі лінії, що живлять блок педалі керування та головний важіль.
Зніміть Т-подібну частину та замініть її на Z-подібний роз’єм, у якому четверте додаткове з’єднання використовуватиметься для під’єднання додаткового важеля.
Під’єднайте кабель пневматичної системи Q до пневматичного кросовера Z на шиномонтажному пристрої. .
Закрийте бічний корпус шиномонтажного пристрою.
ЕКСПЛУАТАЦІЯ
Рука розроблена для монтажу низькопрофільних шин, посилених шин типу С і шин Run-Flat, однак її універсальна конструкція дозволяє працювати з будь-якими типами коліс, що значно полегшує збирання та розбирання та водночас зменшує ризик пошкодження шини та обода.
ЗНЯТТЯ ШИН
Установіть колесо на стіл шиномонтажного пристрою, переконайтеся, що борт шини відокремлений від краю обода, використовуйте зовнішню ручку.
ПРИМІТКА:
Розбирання та встановлення шини за допомогою опорного кронштейна вимагає використання зовнішнього тримача обода. Це пов’язано з тим, що збільшений діапазон операцій, доступний допоміжним важелем, може створювати додаткові перевантаження, що діють на обід і шину.
За допомогою джойстика підніміть увесь допоміжний важіль над верхню поверхню колеса, розташуйте притискний важіль із роликом так, щоб ролик знаходився над боковою стінкою шини, тобто якомога ближче до краю обода (ролик не може торкатися краю обода).
Використовуючи джойстик керування, поступово опускайте руку, натискаючи на шину, одночасно обертаючи робочий стіл шиномонтажних пристроїв за годинниковою стрілкою.
Щоб зняти верхній борт шини, перемістіть монтажну головку A до краю обода. Потім за допомогою направляючого ролика C натисніть на край шини, щоб вставити монтажну ложку B між монтажною головкою та бортом шини.
Підніміть опорний ролик C і перемістіть його у вихідне положення, щоб він більше не знаходився в робочому просторі. Розмістіть кінець натискного важеля E над бічним краєм шини, навпроти монтажної головки A. Використовуючи джойстик D, опустіть натискний важіль так, щоб борт шини знаходився нижче краю, де шина сидить на ободі. За допомогою ковша B натягніть борт шини на монтажну головку. Правильно сидяча нога з лівого боку голови повинна бути під полозом, а з правого боку на голові голови.
Підніміть опорний важіль, щоб натискний важіль звільнив шину, і відсуньте всі робочі важелі від робочого простору столу.
Натисніть педаль керування Z, робочий стіл повернеться за годинниковою стрілкою, а монтажна головка перемістить борт шини через край обода.
Щоб демонтувати нижню ніжку, скористайтеся поворотною платформою. Покладіть диск під шину так, щоб він не торкався обода. Натисніть педаль Z, робочий стіл почне обертатися, і в той же час, використовуючи джойстик керування, поступово піднімайте поворотний стіл так, щоб він підняв шину та одночасно зісковзнув борт шини з краю його сидіння на ободі. Коли нижній борт шини повністю від’єднано від обода, перейдіть до стандартної процедури розбирання за допомогою монтажної головки та ковша.
ШИНОМОНТАЖ
Щоб встановити нижній борт шини, нанесіть монтажне мастило на обидва борта шини та, якщо необхідно, на монтажну головку. Пропустіть шину через обід таким чином, щоб головка могла переміститися до краю обода. Розмістіть нижній борт шини на монтажній головці так, щоб борт з лівого боку голови знаходився на полозку голови, а з правого боку борт знаходився під головкою голови.
Натисніть обертання столу педаль Z, натискаючи руками на шину так, щоб нижній борт поступово перекривав верхній край обода. Продовжуйте операцію, доки нижній борт шини повністю не прилягатиме до обода.
Щоб установити верхній борт шини, покладіть борт на монтажну головку так, щоб борт з лівого боку головки знаходився на ободі. головний ковзанок, а права сторона знаходиться під головною трубою.
Розташуйте опорний ролик C над шиною якомога ближче до краю обода. Ролик не повинен безпосередньо торкатися обода.
Розташуйте притискний важіль E у безпосередній близькості від опорного ролика та відрегулюйте його початкове положення так, щоб він торкався борта шини.
Використовуйте джойстик керування D, опустіть важіль так, щоб опорний ролик і притискний важіль притиснулися до шини. Кінець притискного важеля повинен розташовуватися нижче опорного ролика на такій висоті, щоб верхній борт шини знаходився нижче краю її посадки на ободі. Таке положення борта по відношенню до обода, яке підтримується притискним важільом, гарантує мінімізацію натягу, утримуючи борт шини в частині обода, де його діаметр найменший.
ПРИМІТКА :
Опорний ролик і притискний важіль не повинні торкатися обода на будь-якому етапі монтажу шини!
Натисніть педаль обертання, робочий стіл почне обертатися разом із колесом, опорний ролик буде керувати, обертаючи борт шини нижче краю сидіння шини на ободі, а притискний важіль утримуватиме борт у місці, де обід має найменший діаметр, мінімізація стресу.
ПРИМІТКА:
Якщо будь-яка з операцій починає виконуватися неправильно, зупиніть процес встановлення шини. Підніміть педаль керування Z, робочий стіл повернеться проти годинникової стрілки. Коли шина ослабне, виправте положення опорного кронштейна та спробуйте ще раз.
ПРИМІТКА:
Ніхто інший ніж оператор присутній під час роботи. можуть бути розташовані в робочій області пристрою.
