Автоматичний двоколонний підйомник 4000 кг на рамі TC0001
- Час доставки: 7-10 днів
- Стан товару: новий
- Доступна кількість: 14
Просматривая «Автоматический двухстоечный подъемник 4000 кг на раме ТС0001.» данное изделие из «Столбчатые подъемники» вы можете быть уверены, что после оформления заказа, доставки в Украину, вы получите именно то, что заказывали, в оговоренные сроки и европейского качества.
Автоматичний двоколонний підйомник 4000 кг на рамі TC0001
Рамна конструкція
Підйомник TC0001 є посиленою версією надзвичайно популярного автоматичного підйомника TQ0001. Підйомник оснащений самонесучою рамою, що дозволяє встановити в цеху, де товщина бетонної стяжки недостатня для встановлення стандартного двоколонного підйомника.
Універсальне використання
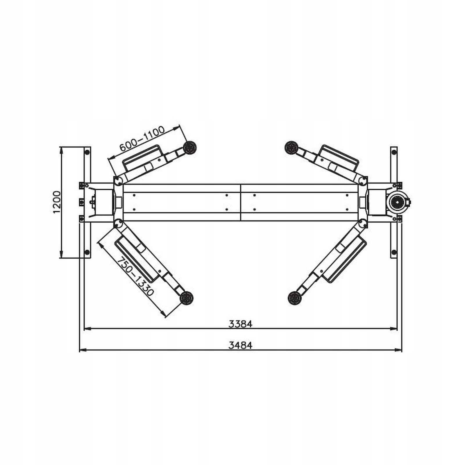
Гандопідйомність підйомника 4 т в поєднанні з каркасною конструкцією є основними перевагами представленої моделі. Передні підйомники мають 3-секційну телескопічну структуру. Найменша відстань передніх плечей (600 мм) дозволяє піднімати невеликі пасажирські транспортні засоби. Максимальна відстань між задніми плечами (1330 мм) необхідна для стабільного положення та безпечної експлуатації транспортних засобів. Плечі в підйомнику асиметричні і відкидаються назовні, що забезпечує оптимальний баланс піднятого автомобіля. У стандартну комплектацію підйомника входить комплект прокладок висотою 150 мм. Вони необхідні при обслуговуванні фургонів з тентом і позашляховиків, що піднімаються за раму. Опори, розміщені під транспортним засобом, відкручуються та прикріплюються до кронштейнів і прокладок за допомогою засувки.
Автоматичний підйомник
Перевагою автоматичного підйому є зручне керування процесом підйому та опускання за допомогою кнопок на панелі керування, без необхідності вручну знімати замок на кожній колоні. Рішення скорочує час роботи підйомника, оскільки працівнику не потрібно переходити з іншого боку автомобіля, щоб розблокувати замок. Обидві колонки мають електромагніти, які автоматично відключають замки після натискання кнопки опускання на панелі керування.
Безпека
Система запобіжної засувки активується автоматично при підйомі автомобіля. Крім того, кінцевий вимикач зупиняє процес підйому, коли підйомник досягає максимальної висоти. Кінцевий вимикач також встановлений у найнижчому положенні підйомних візків, завдяки чому перевантаження гідравлічної системи зведено до мінімуму. Крім того, підйомні візки оснащені гумовим захистом, який захищає двері автомобіля від пошкоджень. Підйомник оснащений аварійним вимикачем, який дозволить негайно зупинити роботу підйомника в небезпечній ситуації.
Багаторічна довговічність
Точне виготовлення компонентів не тільки забезпечує довший термін служби ліфта, але й гарантує кращий комфорт роботи. Спеціально розроблені електромагнітні замки гарантують тиху роботу підйомника. Висока якість використовуваних матеріалів гарантує надійну експлуатацію підйомника протягом багатьох років. Механічні елементи підйомника (ланцюг, привод, салазки, канати) захищені спеціальними кожухами, встановленими з внутрішньої сторони кожної колони. Рішення забезпечує відмінну довговічність компонентів ліфта протягом усього періоду експлуатації та виключає ризик пошкодження під час зварювання або шліфування в безпосередній близькості від машини.
Документи для Управління технічної інспекції
Усі двоколонні ліфти Techwar мають дійсний сертифікат CE, виданий уповноваженим органом в Європейському Союзі, і відповідають необхідним вимогам для реєстрації в Управлінні технічного нагляду. Разом з підйомником ви отримуєте два примірники технічної документації. Щоб зареєструвати ліфт, вам знадобляться будівельна та електротехнічна документація, а також протокол монтажу, що входить до документації ліфта.
Обслуговування та гарантія
На всі ліфти Techwar поширюється 5-річна гарантія. Гарантія вимагає, щоб установку проводив авторизований монтажник і регулярно проходив технічне обслуговування. Мобільний сервіс виконує весь гарантійний ремонт на місці замовника, де встановлений підйомник. Завдяки цьому наші клієнти мають повний контроль над процесом ремонту або перевірки, і, перш за все, вони не витрачають час на демонтаж, відправку та повторне збирання відремонтованих або замінених компонентів. У нас є всі стандартизовані частини для наших ліфтів, робочі елементи (троси, ковзанки, гумові елементи), а також механічні, гідравлічні та електричні компоненти.
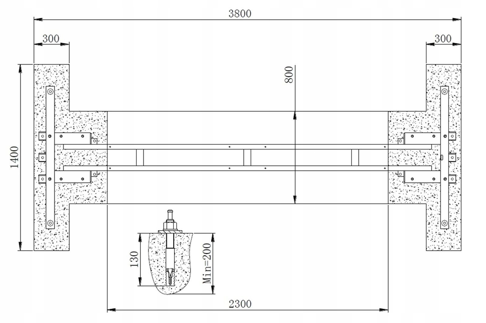
Підготовка ґрунту
Основні вимоги до підготовки ґрунту для встановлення двоколонного підйомника:
Основні розміри ґрунту: довжина - 4000мм, ширина - 1500мм, глибина - 200мм
Поверхня, на якій буде розміщено підйомник, повинна бути однорідною та рівною.
Допустимий перепад до 0,5 см на 3 м довжина.
Підкладка, на якій буде встановлено підйомник, має бути попередньо виготовленою та висихати щонайменше 15 днів, що гарантує відповідну стійкість.
