Гібридна садова ванна попрад h
- Час доставки: 7-10 днів
- Стан товару: новий
- Доступна кількість: 1
Просматривая «Гибридная садовая ванна Poprad H», вы можете быть уверены, что данный товар из каталога «Джакузи» будет доставлен из Польши и проверен на целостность. В цене товара, указанной на сайте, учтена доставка из Польши. Внимание!!! Товары для Евросоюза, согласно законодательству стран Евросоюза, могут отличаться упаковкой или наполнением.
poprad h - гібридна садова ванна
Poprad H Garden Bathtub - це інноваційне рішення, що поєднує дерев’яний та електричний нагрівач , забезпечуючи максимальний комфорт використання. Ідеально підходить для людей, які періодично користуються ванною, але вони хочуть тривати гарячу воду, наприклад Протягом вихідних.
✅ Швидке нагрівання - Випікання на деревину досягає оптимальної температури приблизно за 2 години
✅ Температура підтримує теплі протягом декількох днів
✅ Змушеності та заощадження - не потребує постійного нагрівання водних та/p>
. - Ефективність та комфорт використання протягом багатьох років
Завдяки цій системі ви можете насолоджуватися теплою та чистою водою без зайвих турбот з цього приводу
Реклама застосовується до ванни Poprad з:
✅ басейн антрациту
✅ корпус термодревна (просочення двох часів - безбарвного кольору)
✨ можливості зробити ванну в іншій конфігурації! Запитайте деталі
Equipment h2> - Acrylic insert
- Thermal cover
- Full insulation of DNA and housing
- Electric heater 3 kw
-
- control panel
- complete stainless stove
-
- built -in Hydromassage 10 water and air nozzles
- Світлодіодне підводне освітлення-7
- Корпус: termodrewno
- dennas, побудований з введення пластику ABS
- відтоку
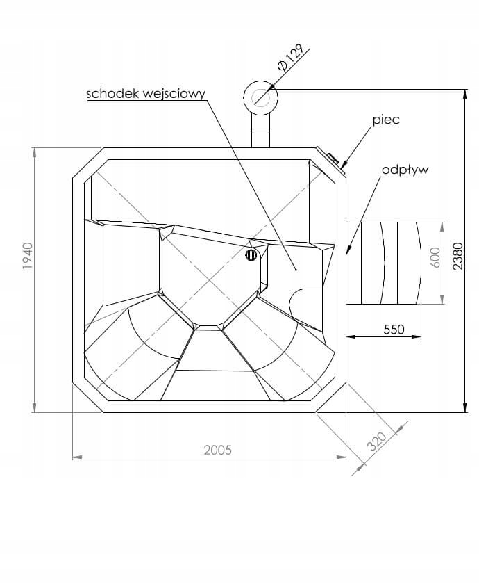
Garden bathtub Poprad H - technical specification
bathtub:
✅ width: 194 cm
✅ length: 200.5 cm
✅ Weight: 250 kg
✅ Housing: Yes
✅ Cover: acrylic - anthracite color
✅ Number of people: 5
✅ Capacity: 900 l
✅ heating: around 2h
Bake for wood:
✅ Двері: 22 х 30 см
✅ Максимальна довжина Szakap: 40 см
Електричні пристрої:
✅ електрична 1,1 кВт
✅ насос фільтра: 0,25 кВт
✅ панель управління: Так
мати садову ванну -це інвестиція у ваше здоров'я та добре.
Регулярні ванни приносять багато переваг, включаючи:
- перила болю в м’язах та суглобах - гідромасаж прискорює регенерацію після фізичних зусиль і допомагає полегшити біль у м’язах та суглобах
- Зміцнення імунної системи - звичайні ванни можуть допомогти зміцнити імунну систему та боротися з інфекціями. Сон - розслабляючі ванни можуть допомогти вам швидше заснути і спати глибше.
- Більш красива шкіра - гаряча вода та гідромасаж допомагають покращити гідратацію шкіри та надати їй твердості. Кров.
