Двері з нержавіючого газу з нержавіючої статі 50x60 см
- Час доставки: 7-10 днів
- Стан товару: новий
- Доступна кількість: 99
Приобретая «Дверь нержавеющей нержавеющей газы 50x60 см» данный товар из каталога «Газовые шкафы и ящики» вы можете быть уверены, что после оформления заказа, доставки в Украину, вы получите именно то, что заказывали, в оговоренные сроки и европейского качества.
Двері газової двері з нержавіючої сталі 50x60 см
З символом: 50603ns
Додаток
Невеликі безкоштовні засоби -одиночні будинки, невеликі будівлі громадські комунальні послуги, послуги, майстерні тощо
ідеально підходять як для кімнат, так і для зовні. Нерухомості робить газові двері виглядати дуже сучасними і чудово виглядають на кожній будівлі.
Після складання не забудьте зняти захисну плівку! Технічні дані
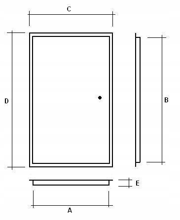
Розміри
Можна замовити двері для будь -якого виміру.
Небудові дні -це близько 10 робочих днів. Впровадження такого замовлення лише після передоплати.
Будь ласка, надішліть цитату на електронну пошту.
