Дверний доводчик GEZE TS 2000 NV BC зі сріблястим кронштейном
- Час доставки: 7-10 днів
- Стан товару: новий
- Доступна кількість: 1
Оплачивая «Дверний доводчик GEZE TS 2000 NV BC зі сріблястим кронштейном», вы можете быть уверены, что данное изделие из каталога «Самозакрывающиеся» будет доставлено из Польши и проверено на целостность. В цене товара, указанной на сайте, учтена доставка из Польши. Внимание!!! Товары для Евросоюза, согласно законодательству стран Евросоюза, могут отличаться упаковкой или наполнением.
geze ts 2000 nv до н.е.
geze ts 2000 nv bc срібло
Материнський само -навантажувач для одиночних дверима з функцією демпфування
Смід включає:
geze ts 2000 nv bc p>
Характеристики продукту
Регулювання сили закриття в діапазоні 2-5 (відповідно до PN-EN 1154)
демпфірування відкриття дверей відкриття дверей 80 ° з постійним діапазоном експлуатації (таким чином -зведеним "анти -Viator")
регульована швидкість закриття, закриття кінцевої фази (закінчення) та демпфірування відкриття (назад)
стійкість до корозії - Дуже високий (клас 4 відповідно до PN -EN 1670)
міцність функції автоматичного закриття - 500 000 циклів (клас 8 відповідно до PN -EN 1154)
Стандарт обробки - срібло , коричневий, білий, чорний.
область застосування
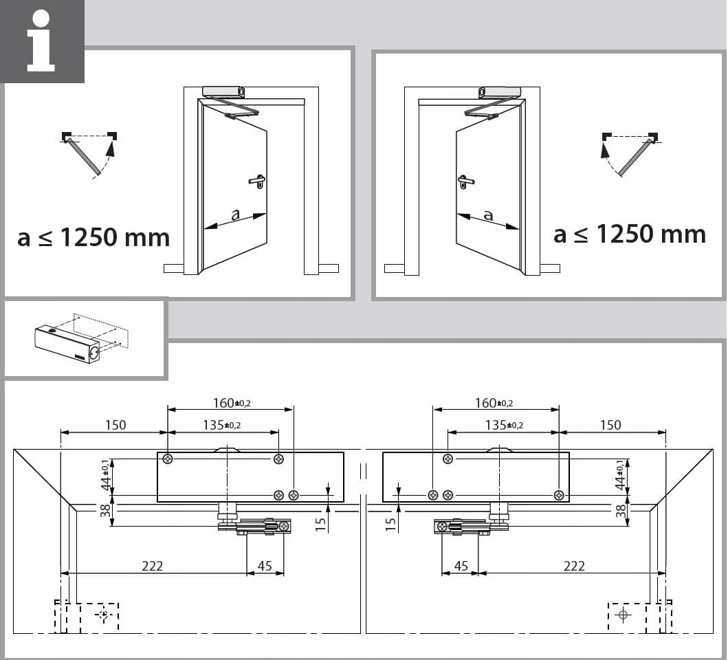
для 1 -Wing дверей з шириною шириною до 1250 мм
для вогню та димовуть двері - силою 3 ( Відповідно до PN -EN 1154)
Установка
Стандарт - на дверцятному листя на навісному боці
перевернуто - на кадр на кадрі на протилежній стороні
