Електрична вбудована світлодіодна вставка. 60 см. ЯКІСТЬ
- Час доставки: 7-10 днів
- Стан товару: новий
- Доступна кількість: 100
Заказывая «Електрична вбудована світлодіодна вставка. 60 см. ЯКІСТЬ» данный товар из каталога «Электрические камины», вы можете получить дополнительную скидку 4%, если произведете 100% предоплату. Размер скидки вы можете увидеть сразу при оформлении заказа на сайте. Внимание!!! Скидка распространяется только при заказе через сайт.
Камін виготовлено за запатентованою технологією Esense LED, завдяки якій вдалося відтворити реальний вигляд полум'я b> і мінімізуйте b>енергоспоживання та максимізуйте довговічність світлодіодного освітлення.
ВСТАВКА СВІТЛОДІОДНА ЕЛЕКТРИЧНА з дистанційним керуванням, 60см
Електрокамінна топка з LED технологією. Можливий вибір однієї з двох потужностей нагріву: 1000W або 2000W. Камін має ефект горіння дров. Ефект полум'я в каміні можна використовувати окремо, без підігріву, що дозволяє створити неповторну атмосферу в кімнаті, регулюючи яскравість полум'я.
Камін оснащений термостатом і захистом від перегріву, що забезпечує комфорт і безпечне використання.
ВСТАВКА СВІТЛОДІОДНА ЕЛЕКТРИЧНА з дистанційним керуванням, 60см
Електрокамінна топка з LED технологією. Можливий вибір однієї з двох потужностей нагріву: 1000W або 2000W. Камін має ефект горіння дров. Ефект полум'я в каміні можна використовувати окремо, без підігріву, що дозволяє створити неповторну атмосферу в кімнаті, регулюючи яскравість полум'я.
Камін оснащений термостатом і захистом від перегріву, що забезпечує комфорт і безпечне використання.
Технічні дані:
- Модель: CERINO
- Потужність нагріву: 2000 Вт
- Ефект палаючої деревини
- Захист від перегріву
- Функція незалежного регулювання інтенсивності світла li>
- Термостат
- Вбудований вентилятор
- З електронним дисплеєм температури та таймером
- Багатофункціональний пульт дистанційного керування
- Два рівні потужності: 1000/2000 Вт
- Розміри: 61 x 20,5 x 44 см li>
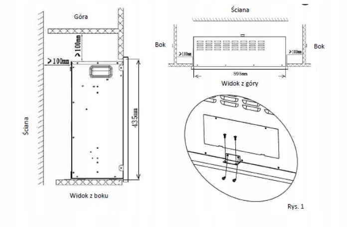
- Отвор для кріплення вставки в стіні повинен мати розміри 595 мм завширшки та 435 мм заввишки.
- Вага: 14 кг
- Номінальна напруга: 230 В~50 Гц
- Освітлення: світлодіодне
- Колір: чорний
