Фотоелектрики для Solarbox III Hoyimile HMS800W балкон без панелей Wi -Fi
- Час доставки: 7-10 днів
- Стан товару: новий
- Доступна кількість: 50
Покупая «Солнечная батарея SolarBox III Hoymiles HMS800W для балкона без Wi-Fi-панелей» данный товар из каталога «Солнечные коллекторы и фотоэлектрические панели» вы можете быть уверены, что после оформления заказа, доставки в Украину, вы получите именно то, что заказывали, в оговоренные сроки и европейского качества.
Набір балкона Solar 800W Solarbox III - без панелей
При покупці ми створимо обліковий запис інсталятора
Єдиний такий унікальний набір для самостійного складання на ринку які ви можете використовувати власні панелі. Завдяки новітній технології, мікро -інсталяція може бути підключена до домашньої електричної мережі за допомогою вилку за умови, що установка не перевищує максимальну дозволену потужність 800 Вт, яка може бути використана без додаткового захисту. (ЄС) 2016/631 з 14.04.2016 Код RFG визначає вимоги до модулів виробництва енергії потужністю понад 800 Вт. Це означає, що набір має потужність 800 Вт, а пристрій, що виробляє таку електроенергію, не вважається установкою, і вимоги, що містяться в коді RFG, не застосовуються до них, тобто не потрібно використовувати додаткову безпеку.
Згідно з положеннями кожної установки, навіть нижче 800 Вт слід повідомити про (енергетична установка) , і ми рекомендуємо це зробити. Це пов'язано з заміною лічильника двома шляхами, щоб надлишок не був перетворений на метр, як споживання. Заміна лічильника на два -безкоштовно.
Будь ласка, надайте повідомлення продавцю, які ручки повинні бути включені до набору - 40 мм або 50 мм. /b>
Простий спосіб монтажу:
Пропозиція включає ручки, які підходять для квадратних і круглих поручнів, а максимальна ширина, на яку можна повісити ручку, становить 40 мм або 50 мм. Кожна ручка виготовлена з антикорозійного матеріалу і кріпиться до панелі. Крім того, панель тримається знизу, а мікроінвертор кріпиться до неї та, таким чином, ховається під панеллю, це рішення забезпечує нам повну безпеку та зручність. Вся справа в простому і безпечному монтажі у вигляді навішування без установки додаткових профілів на монтажні поверхні і без втручання в конструкцію балюстради. Власники сертифіковані на відповідність вимогам до конструкції фотоелектричних конструкцій відповідно до PN EN 1090-1,2:2012.
Тримачі:
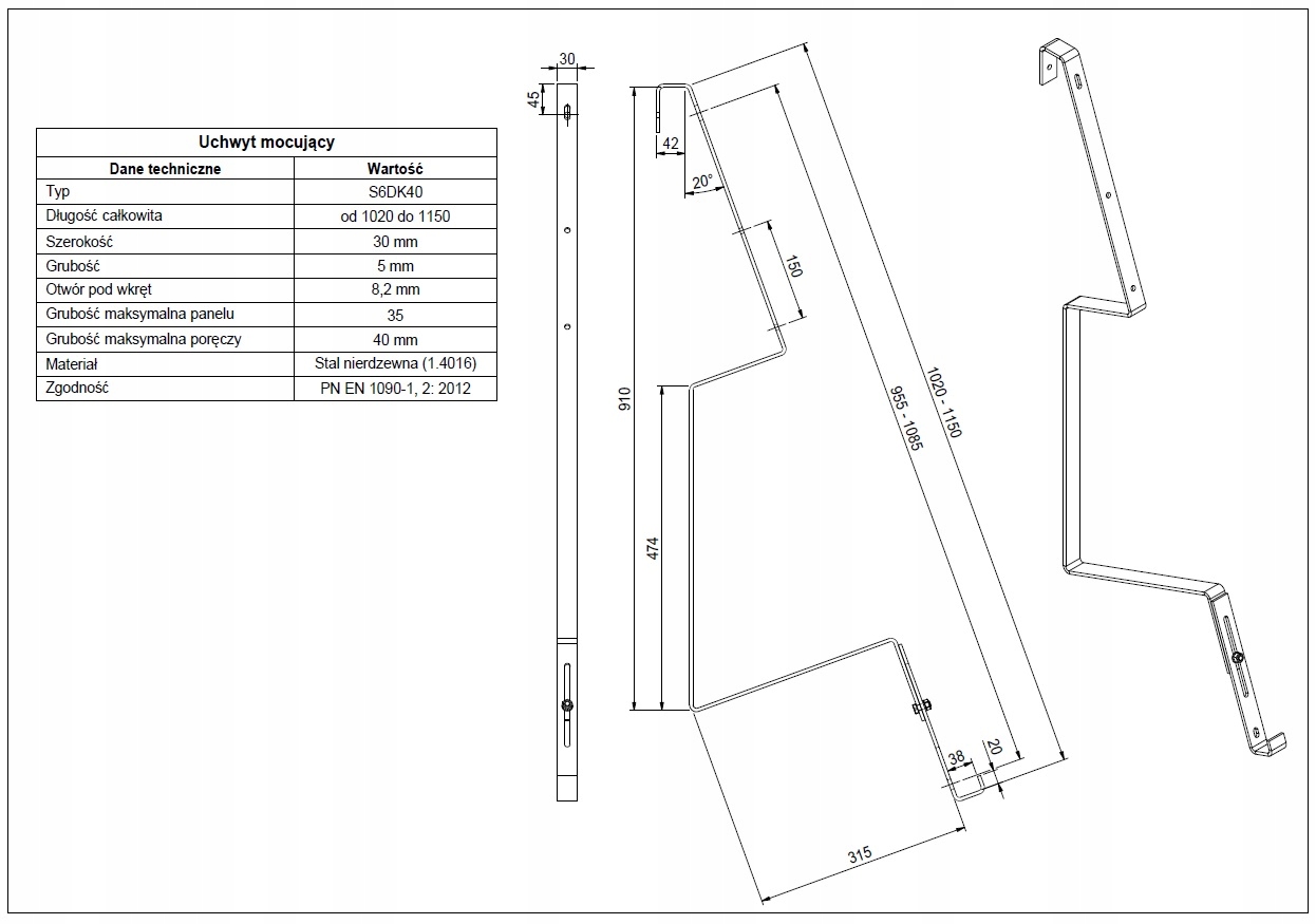
Параметри:
- Тип - S6DK40/50
- Довжина - 1020-1150 мм
- Ширина - 30 мм
- Товщина - 5 мм
- Отвір для шурупа - 8,2 мм
- Максимальна товщина панель - 35 мм
- Максимальна товщина поручня - 40/50 мм
- Матеріал - нержавіюча сталь (1.4016)
- Відповідність - PN-EN 1090-1.2 :2012
Мікроінвертор:
Мікроінвертор – це пристрій, який дозволяє перетворювати потужність постійного струму сонячних панелей у змінний струм, що відповідає вимогам мережі, і дозволяє підключити 2 сонячні панелі до потужність до 540 Вт. p>
Однофазний мікрохвильовий інвертор із вбудованим Wi-Fi, який дозволяє детально контролювати установку, з двома новими функціями: компенсація реактивної потужності та кращий зв’язок;
Пропонується Інвертор від Hoymiles, одного з найбільших виробників мікроінверторів для фотоелектричних установок, представляє 2-канальний мікроінвертор, з’єднаний у ланцюгову систему, що характеризується надзвичайно широким діапазоном вхідної напруги постійного струму (16-60 В) і низькою початковою напругою ( лише 22 В). З ефективністю перетворення до 96,7% і ефективністю MPPT до 99,9% мікроінвертор Hoymiles є одним із найкращих у світі.
