ГАЗОВА ПЛИТА ВАННА JUNKERS WRD 9-4KB TERMA
- Час доставки: 7-10 днів
- Стан товару: новий
- Доступна кількість: 4
Просматривая «JUNKERS WRD 9-4KB TERMA ГАЗОВАЯ ПЛИТА ДЛЯ ВАННОЙ» данное изделие из «Водонагреватели» вы можете быть уверены, что после оформления заказа, доставки в Украину, вы получите именно то, что заказывали, в оговоренные сроки и европейского качества.
Junkers HYDRO 4200 WRD 9-4KB - Газовий водонагрівач з LCD дисплеєм 15,7 кВт (7736505638)
Junkers HYDRO 4200 WRD 9-4KB з LCD дисплеєм ( газовий обігрівач) Обігрівач оснащений автоматичним розпалом від акумулятора. Так зване пілотне полум'я забезпечує м'який і тихий старт. Електрика, необхідна для запуску розпалювання, отримується від двох батарей. Коли вода забирається, спочатку запалюється пілотне полум'я, а потім весь пальник. Запальне полум'я гасне через мить після розпалювання основного пальника.
Сучасна панель управління, оснащена двома симетрично розташованими ручками, дозволяє легко регулювати робочі параметри пристрою.
Потужність пальника регулюється ручкою зліва, а витрата – ручкою справа. Після початкового налаштування пристрій самостійно регулює потужність пальника, щоб отримати постійну температуру води незалежно від зміни витрати води.
Це ідеальне рішення при заміні наявного нагрівача на новий. Відстань з'єднань стандартна - незмінна порівняно з попередньою версією. Це дає можливість замінити пристрій без необхідності змінювати установку. Прилади налаштовані на заводі для спалювання газу GZ50. Шланги та батареї постачаються разом із пристроєм.
Переваги:
- автоматичне запалювання від акумулятора - ручне запалювання не потрібне
- дистанційне керування полум'ям - безшумний запуск приладу
- продуктивність гарячої води 9 л/хв
- діапазон регулювання потужності 8,4-15,7 кВт
- РК-дисплей забезпечує зручне керування, контроль температури та легка діагностика несправності
Технічні параметри
- Виробник: JUNKERS
- Колір: білий
- Версія: вертикально висить
- Вага: 9,5 кг
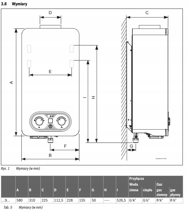
- Висота: 580 мм
- Ширина: 310 мм
- Глибина: 225 мм. li>
- Потік гарячої води: (ΔT = 25°C) 9 л/хв
- Тип газу: природний газ (GZ50)
- Мережа живлення: 2 x 1,5 В LR 20 акумулятори
- Гарантійний термін виробник: 2 роки (реквізити в гарантійному талоні)
- Клас енергоефективності: A
- Профіль споживання води: M
- Додатковий опис: оснащений LCD дисплеєм < /li>
