КОТЕЛ КОТЕЛ ЦЕНТРАЛЬНОГО ОПАЛЕННЯ ПІЧ 16KW ВУГІЛЬНИЙ ГАЗ
- Час доставки: 7-10 днів
- Стан товару: новий
- Доступна кількість: 2
Заказывая «КОТЕЛ SPAW КОТЕЛ ЦЕНТРАЛЬНОГО ОТОПЛЕНИЯ 16 КВТ УГОЛЬ ГОРЯЩИЙ ГАЗ» данный товар из каталога «Котлы и печи», вы можете получить дополнительную скидку 4%, если произведете 100% предоплату. Размер скидки вы можете увидеть сразу при оформлении заказа на сайте. Внимание!!! Скидка распространяется только при заказе через сайт.
Котел газифікаційний вугілля ŻarKo 16 кВт, 5 КЛАС, екодизайн
ПОЛЬСЬКИЙ ВИРОБНИК KOTŁOSPAW
ŻarKo, це остання модель - котел газифікаційний вугілля з чудовими параметрами нагріву та компактною сучасною конструкцією. Його було створено з урахуванням універсальності!
Продукт відповідає вимогам останнього стандарту PN-EN 303-5: 2021, отримавши відмінні результати викидів в акредитованій випробувальній лабораторії - він має екологічний дизайн і сертифікати класу 5!
Żarko - це піч нижнього спалювання нескладної конструкції, полегшення повсякденного використання.
Спеціально розроблена подача повітря в керамічну форсунку, яка служить камерою згоряння, гарантує добре згоряння палива та чисте повітря.
Для регулювання потоку повітря використовується регулятор тяги, який дозволяє легко встановити задану температуру. Очищення решітки підтримується встановленою змінною гребінчастою системою, яка активується натисканням ногою на важіль, прикріплений до котла.
Вимога правильної роботи котла полягає в тому, щоб встановити в ньому буфер тепла, який відповідає потужності котла. Лампа може бути встановлена у відкритій або закритій системі до 2 бар за допомогою запобіжного клапана.
Особливості вугільного газифікаційного котла ŻarKo:
- Надійна конструкція з використанням лише сертифікованих матеріалів,
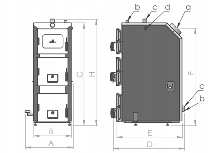
- Зрізання виходу вихлопних газів під кутом дозволяє підключити його до будь-якої котельні,
- Використання регулятора тяги для регулювання потоку повітря,
- Ефективне та екологічне спалювання,
- Проста конструкція обмінника, безпроблемне очищення,
Набір включає:
- регулятор тяги,
- ножний покер,
- лопатка для чищення стін,
- щітка для чищення обмінника,
- чотири регульовані ніжки,
