Модульні сходи DUDA модель Maxima 00 U-180 13 елементів
- Час доставки: 7-10 днів
- Стан товару: новий
- Доступна кількість: 1
Просматривая «Модульні сходи DUDA модель Maxima 00 U-180 13 елементів», вы можете быть уверены, что данный товар из каталога «Внутренняя лестница» будет доставлен из Польши и проверен на целостность. В цене товара, указанной на сайте, учтена доставка из Польши. Внимание!!! Товары для Евросоюза, согласно законодательству стран Евросоюза, могут отличаться упаковкой или наполнением.
Модульні сходи duda maxima 00 U-180 13 елементів
Сходи Максимаї 00-це сходи для самозбірки.
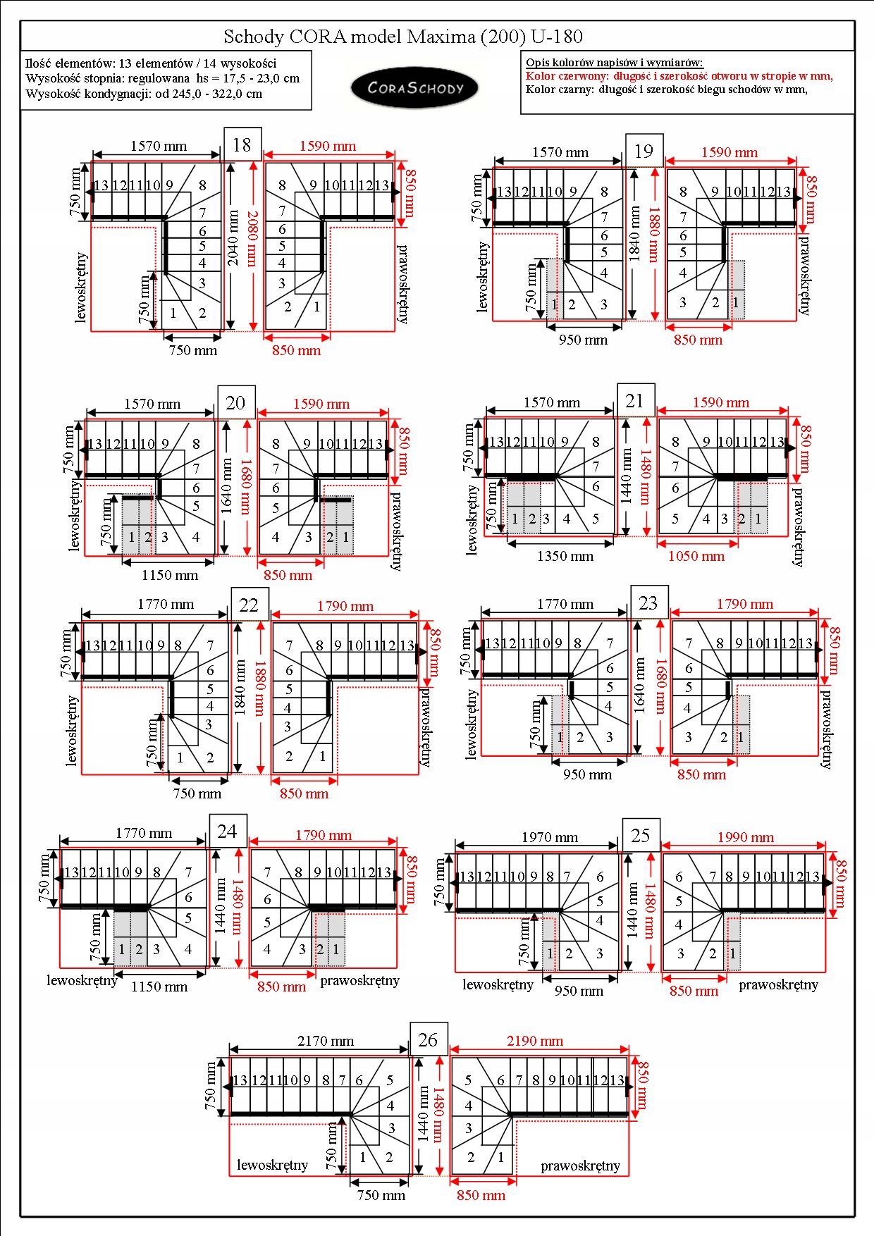
Включено 13 елементів сходів, що входять до 14 рівнів. Елементи виготовлені з міцної деревини (колір на вибір кольорової палітри виробника) та порошкоподібної сталі в конструкції чорного килима. Після замовлення послуги за додаткову плату, професійні збори в країні складають виробник.
Модульні сходи, як сучасне використання в будівництві, замінюються традиційними сучасними дерев'яними сходами.
Максимальні 00 Сходи мають можливість встановити його в одній із 52 конфігурацій, яка повністю представлена виробником. Ця модель спочатку має U-180, як правий, так і зліва. Можна замовити просту процедуру, додавши анотацію до форми замовлення.
Рекомендується встановлювати сходи біля стіни, до 5 см від неї, що дозволяє монтувати якорів. Якщо стіна не витримує якоря, використовуйте полюс підтримки взаємозамінно. Для безкоштовних сходів планується використовувати колонку підтримки, а також перила, що захищає з обох сторін, додаткові варіанти на запит.
Опис, параметри, використовуйте
Застосування: Внутрішні сходи (всередині будівлі)
Вага навантаження: Максимальне навантаження на ступінь 200 кг
Вага: Набір сходів/Набір 13 елементів 220 кг
Тип сходів: Один променевий сходи (модуль) та використання and large rooms
Type of construction: modular metal 200
wood finish: in the price of stairs (illustrative photo on beech/BR-232) or colored in a selected color of the wood color palette
configuration, configuration, configuration, configuration, Systems: Possible use of the U-180 stairs in 52 systems
Balustrade type: 22 mm vertical trolls
Виробник: Польський виробник модульних, металевих сходів
Важлива інформація про безпеку використання та використання сходів:
Сходи повинні частково працювати біля стіни. Їх не можна зняти зі стіни більше 5 см. Це пов'язано з безпекою використання сходів. Потрібно використовувати якір якоря для стіни.
In the event of the stairs as a free-standing, it is advisable to use:
- support pole,
- Balustrade on both sides of the stairs,
Technical description
height: 245/322 cm,
Number of elements: 13 pieces/14 levels
degree height: Регульований 17,5/23,0 см,
Простий розмір ступеня: 260 (200+60) мм
Товщина стану: 40 мм
отвір у стелі: мінімум 1390 х 1480 мм
Ширина запуску:
-u-180: 750/750/750 мм
Тип деревини: Літа Бук,
Металевий колір: Конструкція чорного килима (RAL 9005)
дерев’яний колір: у ціні стовпів, ілюстративні фотографії сходів
Модульна структура: 200 метал
Один -розрізнений балюстрада
Вертикальні тролі (метал) 22 мм
, що потрапили в градуси
після 3 штук на 3 висоту, розміром 1>
від підлогу - 3 градуси)
від підлоги до поверху 210 - 276 см - 11 градусів/12 висот ( - 2 градусів)
від підлоги до підлоги 228 - 299 см - 12 градусів/13 висоти ( - 1 градус)
plos CM - 14 градусів/15 висоти (+ 1 градус)
від підлоги до підлоги 280 - 368 см - 15 градусів/16 висота (+ 2 градусів)
