ПЕЛЕТНИЙ КОТЕЛ SAS BIO COMPACT 12 КВТ ПЛЮС РОЗСРОЧКА 0%
- Час доставки: 7-10 днів
- Стан товару: новий
- Доступна кількість: 1
Просматривая «ПЕЛЕТНИЙ КОТЕЛ SAS BIO COMPACT 12 КВТ ПЛЮС РОЗСРОЧКА 0%» данный товар из каталога «Котлы и печи» вы можете быть уверены, что после оформления заказа, доставки в Украину, вы получите именно то, что заказывали, в оговоренные сроки и европейского качества.
СПЕЦИФІКАЦІЇ
- Тип: котел з автоматичною подачею палива, пелетний котел вищого стандарту
- Тип спалювання: подача палива за допомогою пальника SAS MULTI FLAME
- Потужність: 10 кВт, 12 кВт, 17 кВт, 20 кВт, 25 кВт
- Паливо: біомаса у формі спресованих деревних гранул
- Клас: 5 (найвищий, згідно з PN-EN 303-5:2012)
- EcoDesign: 10 кВт, 12 кВт, 17 кВт, 20 кВт, 25 кВт
- Викид пилу: не перевищує 20 мг/м³
- Клас енергоефективності: A+
- ККД: 91,7÷93,9%
- Матеріал теплообмінника: котельна сталь P265GH, товщ. 6 мм, елементи котла і топки з нержавіючої сталі 1.4301
- Варіанти: паливний бак може бути розташований праворуч або ліворуч від котла, димохід може бути спрямований праворуч, ліворуч або вгору - завжди в задній частині котла ( опція доступна за спеціальним замовленням) li>
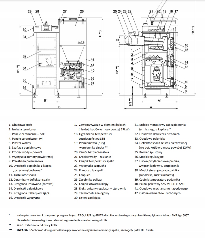
- Обладнання: контролер (ST-555P), пальник SAS MULTI FLAME (модуль керування роботою пальника, розпалювальний нагрівач, механізм рухомої решітки, фотоелемент - датчик пожежі, датчик температури живильника), вентилятор (повітр. система управління - AIR FLOW CONTROL), дефлектор з нержавіючої сталі (для потужності 10,12 кВт), керамічні панелі, керамічний дефлектор вихлопних газів, турбулятор вихлопних газів, термометр, запобіжний клапан, паливний бак з датчиком відкриття заслінки, датчик температури вихлопних газів, STB безпеки обмежувач температури, набір регульованих ніжок, набір інструментів для обслуговування котла
- Гарантія: 5 років на герметичність теплообмінника, 1 рік на запальник палива, 2 роки на електронні компоненти та інші елементи котла
SAS BIO COMPACT PLUS - ОСОБЛИВОСТІ КОТЛА
✅бойлер вищого стандарту - для більшої субсидії від Програми чистого повітря
✅відповідає вимоги класу 5 (найвищий) згідно зі стандартом PN-EN 303-5:2012 щодо теплової ефективності, граничних значень викидів забруднюючих речовин, обмежувальних вимог безпеки
✅відповідає вимогам екодизайну ( EcoDesign), зазначених у Регламенті Комісії (ЄС) 2015/1189 від 28 квітня 2015 р. про імплементацію Директиви 2009/125/ЄС Європейського Парламенту та Ради щодо вимог екодизайну твердопаливних котлів
✅можливість участі в програмах співфінансування для придбання котла
✅компактні розміри, що дозволяють установку та роботу в невеликій котельні
✅доступний у версії з димоходом назад або з димоходом догори
✅просте очищення та роботи
✅потужність: 10кВт, 12кВт, 17кВт, 20кВт, 25кВт
✅клас енергоефективності А+
✅високий ККД 91,7÷ 93,9% та ККД процес згоряння завдяки використанню каналів димових газів у конструкції теплообмінника жарових труб (труб) і керамічних панелей безпосередньо над каміном
✅ Пелетний пальник SAS MULTI FLAME (самоочисний) підпадає під дію Закону про захист № 67681, наданий Польським патентним відомством
- дизайн каміна, що дозволяє зменшити викиди пилу до рівня, що не перевищує 20 мг/м3
- спалювання біомаси у вигляді пресованої деревини гранули - пелети
- механічний захист від повернення полум'я в паливний бак (два транспортних шнека, розділених передавальним каналом)
- li>
- автоматична рухома решітка очищення дувної печі (датчик контроль положення решітки - датчик Холла)
- автоматичне розпалювання палива: нагрівач (електрозпалювач)
- елементи топки з нержавіючої сталі
- li>
- датчик температури подачі
- фотоелемент (датчик пожежі) - контроль наявності полум'я (контроль, серед іншого, процес розпалювання на основі прямого зображення стану топки)
- вентилятор нагнітання з системою контролю повітряного потоку (AIR FLOW CONTROL) - точне регулювання кількості повітря та корекція дози палива
✅паливний бак з датчиком відкриття заслінки
✅запобіжний обмежувач температури STB
✅конструкція дверцят сприяє зниженню тепловтрат в котельні (конструкція вирішення оглядових отворів регулюється Законом про захист № 68867, наданим Патентним відомством РП)
✅ елементи котла з нержавіючої сталі
✅ захист камери згоряння - керамічні панелі на бічна стінка котла
✅ функціональний контролер з кольоровим сенсорним екраном, підтримка чотирьох циркуляційних насосів, двох змішувальних клапанів, погодний контроль, вбудований модуль Ethernet, PID-алгоритм і можливість підключення кімнатного регулятора
