Поворотний димохід COLT fi125 з фланцем
- Час доставки: 7-10 днів
 - Стан товару: новий
 - Доступна кількість: 78
 
Просматривая «Поворотний димохід COLT fi125 з фланцем», вы можете быть уверены, что данный товар из каталога «Основания дымохода» будет доставлен из Польши и проверен на целостность. В цене товара, указанной на сайте, учтена доставка из Польши. Внимание!!! Товары для Евросоюза, согласно законодательству стран Евросоюза, могут отличаться упаковкой или наполнением.
Обертовий кожух димоходу з фланцем COLT, символ 007-4392
Обертовий кожух димоходу COLT — це пристрій, який динамічно використовує силу вітру для підтримки тяги димоходу. Незалежно від напрямку, сили та виду вітру, коренева турбіна завжди обертається в одному й тому самому напрямку. Встановлюється на димохідних виходах самопливної вентиляції. Конструкція капота (малий діаметр турбіни) дозволяє встановлювати капот на серійні вентиляційні димоходи. Ефективність колпака пропорційна швидкості вітру, що дме, і не залежить від його напрямку та кута атаки.
Капот димоходу COLT не підходить для відводу вихлопних газів з печей. і каміни, що працюють на твердому паливі, придатні лише для вентиляції димоходів.
Застосування:
- для підтримки гравітаційної витяжної вентиляції;
 - при наявності турбулентності повітря на виході димоходу через його невигідне розташування;
 - коли місцевість несприятлива, із сильними та частими вітрами (зони вітрового навантаження II та III);
 - коли немає стабілізованого димоходу тяга або занадто мала
 
Конструкція:
Насадка COLT оснащена кульковим підшипником у щільно закритому корпусі, заповненому спеціальним маслом. Це гарантує дуже тиху та довговічну роботу капота.Кожух димоходу COLT виготовлений з оцинкованого листового металу, а турбіна виготовлена з алюмінію (обертова частина), обід турбіни виготовлений зі сталі, зберігаючи жорстку та довговічну конструкцію турбіни, і при той же час стійкий до зміни погодних умов. p>
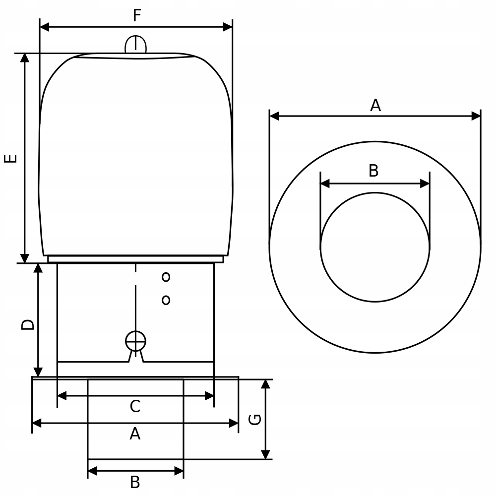
Технічні дані:
- Версія:
 - Turbine - алюміній
 - вхідний отвір -оцинкований лист
 - Максимальна робоча температура: 180 [ºC]
 - Обертова система: b>підшипники у високотемпературній олії.
 - Внутрішній діаметр впускної труби: Ø125
 
