Recuperator wanas combo 630 версії Light System XF
- Час доставки: 7-10 днів
- Стан товару: новий
- Доступна кількість: 5
Оплачивая «Recuperator Wanas Combo 630 Версия Light System XF» данный товар из каталога «Рекуператоры» вы можете быть уверены, что после оформления заказа, доставки в Украину, вы получите именно то, что заказывали, в оговоренные сроки и европейского качества.
Світло Combo 630 Recuperator Wanas з системою XF
- це унікальна вентиляційна одиниця, що поєднує дві функції - вентиляцію та гідратацію повітря. Репуператор використовується для вентиляції окремих будинків або послуг.
Унікальна комбінація зволожувача та відгуку в одному корпусі забезпечить очікуваний комфорт та контроль якості повітря в кімнатах. Використовуючи останнє покоління вентиляторів, Recuperator надзвичайно тихий і енергозбереження, тим самим підтримуючи високу теплову ефективність та відновлення високого рівня.
випаровування повітряного зволожувача, що використовується всередині штабу, підтримуватиме адекватний рівень вологості в кімнатах, особливо взимку. Recuperator є стандартним, оснащеним мініконтролем бездротового датчика вологи, що дозволяє автоматичним та дистанційним керуванням операції зволожувача.
Репуператор призначений для вентиляції кімнат з площею до 360 м2.
Advantages: h2> - built -in evaporative air humidifier
- Wireless moisture sensor minicontrol included
- aluminum cross -current heat exchanger
- automatic 100% bypass
- 3 algorithms freezing
- Touch, easy -to -use controller
- Автоматичний нагрівач Prefly Smart Heather
- Пофарбований інтер’єр поліестерною фарбою
-
- Суцільна, нефламована конструкція -без полістиролу
- Енергетичні вентилятори останнього покоління
-
- Вентиляція через Інтернет (модуля в Інтернеті> потоків встановлення - XF Система
драйвер
Кожен Recuperator є стандартним, оснащеним щотижневим дисплеєм V2 Touch Controller, встановленим у стіні, встановленим передньою скляною панеллю.
Крім того, ви можете придбати мобільний контроль Wanas Mobile W-15 або мобільний модуль Wanas Wi-19 Wi-Fi для Recuperator. (за додаткову плату) .
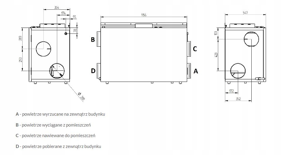
Побудова вентиляційної одиниці
1. Доріжка доріжки/радіатора та навмита
2. Вентилятор екстракту
3. Свердла доріжка теплообмінника
4. повітряний фільтр. Попередній обігрівач
8. ISO коерний повітряний фільтр 75%
9. Обхід
10. Контроль
11. Електричний нагрівач вологового (світла версія)
12. Гельтер/Верховний радіатор (Prestige Version)
13. роз'ємУ стандарті Recuperator має міні -датчик управління
, який використовується для вимірювання вологості та температури в приміщенні. Це дозволяє збільшити витрати вентиляційної одиниці у разі занадто високої вологості в приміщенні або вмикає зволожувач або знижує продуктивність, коли вдома занадто сухий. Датчик сумісний з контролером.
