REJS WE35.0066.12.C74 PURO CORNER SPACE 1100-1200 (Фронт 60) чорний матовий
- Час доставки: 7-10 днів
- Стан товару: новий
- Доступна кількість: 3
Просматривая «REJS WE35.0066.12.C74 PURO CORNER SPACE 1100-1200 (Front 60) черный матовый» данное изделие из «Грузовые и корзины» вы можете быть уверены, что после оформления заказа, доставки в Украину, вы получите именно то, что заказывали, в оговоренные сроки и европейского качества.
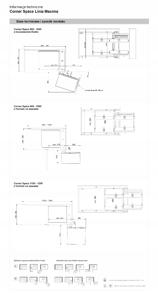
REJS WE35.0066.12.C74 PURO CORNER SPACE 1100-1200 (Фронт 60) універсальний Л/П метал/дерево матовий чорний/дуб
- кожна полиця оснащена антиковзаючим килимком
- повні корзини з листового металу
- два колірних варіанти
- універсальний дизайн, право-ліва модель
- для навісної шафи, а також після придбання переднього кріплення для шафи з висувною фасадною частиною (тільки модель 900-1000)
- регулювання в задній рамі дозволяє установку в шафи шириною 900-1000 і 1100-1200 мм
- можливість регулювати висоту підвішування кошиків підвищує гнучкість використання виробу
