Шестерня M2 Z22
- Час доставки: 7-10 днів
- Стан товару: новий
- Доступна кількість: 13
Просматривая «Шестерня М2 Z22», вы можете быть уверены, что данный товар из каталога «Редукторы» будет доставлен из Польши и проверен на целостность. В цене товара, указанной на сайте, учтена доставка из Польши. Внимание!!! Товары для Евросоюза, согласно законодательству стран Евросоюза, могут отличаться упаковкой или наполнением.
➡️ Gear M2 Z22 ⬅️
Параметри:
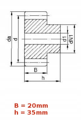
- Модуль: M2
- d1 [мм]: 12
- Виконання: A
- Кількість зубів: 22
- da [мм]: 48
- Ширина B [мм]: 20
- Зубчасті колеса d [мм]: 44
- dN1 [мм]: 30
- Ширина h [мм]: 35
- Код товару: KZ-M2-Z22
Артикул: KZ-M2-Z22
Шестерня M2 z22 — це точно виготовлений механічний елемент із 22 зубами. Ширина колеса становить 20 мм, що забезпечує належну міцність і стабільність під час роботи. Діаметр колеса становить 48 мм, що забезпечує його універсальне використання. Модуль М2 означає, що відстань між зубами становить 2 мм. Зубчасте колесо є невід'ємним елементом багатьох механічних пристроїв, використовується для передачі обертального руху. Його точне виконання гарантує плавну та безвідмовну роботу.
➡️ Фотографії товару можуть дещо відрізнятися від реального вигляду товару. Наприклад, можуть бути ілюстрації, на яких зображено виріб із іншою кількістю зубців, іншим діаметром або довжиною.
✅ На аукціоні ми продаємо товари, параметри яких вказані у верхній частині опису товару.
