Універсальна теплова podwarina eps belka під hs hst 100x6x1175mm blaugelb
- Час доставки: 7-10 днів
- Стан товару: новий
- Доступна кількість: 1000
Просматривая «Universal Heat Podwarina EPS Белка под HS HST 100x66x1175mm blaugelb», вы можете быть уверены, что данный товар из каталога «[rubrica_name]» будет доставлен из Польши и проверен на целостность. В цене товара, указанной на сайте, учтена доставка из Польши. Внимание!!! Товары для Евросоюза, согласно законодательству стран Евросоюза, могут отличаться упаковкой или наполнением.
Універсальний тепловий podwarina eps belka під HS HST 100x66x1175mm blaugelb
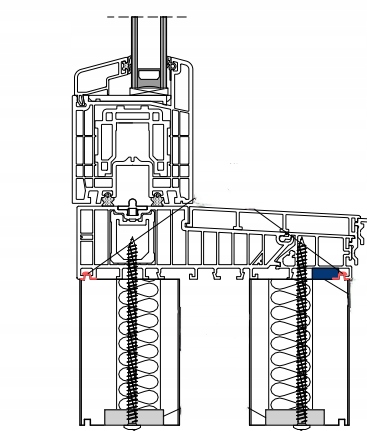
⚙ Белька Розміри:
✅ Висота: 100мм
✅ width: 66mm
2
При покупці не забудьте купувати промені, наприклад 2 PCS або 4 PCS BlaugelB EPS ізоляції з високо стисненим EPS (розширений полістирол) забезпечує найкращий захист від тепла та вологи входу та балконних дверей, виготовлених з дерева, деревини/ алюмінію, алюмінію та пластику. Профіль ізоляції BlaugelB EPS міцний, стійкий і характеризується швидким та легким складанням. Профіль ізоляції BlaugelB EPS забезпечує теплоізоляцію та зменшує теплові мости у звичайних пластичних профілях. Він розмірно стабільний, 100% не містить HCFC, HFC та HBCD. Профіль ізоляції BlaugelB EPS спеціально розроблений для встановлення як профіл ізоляції штанів під порогом.
✅ Завдяки інноваційному зв’язку на профілі ізоляції хвостового профілю Lawlow Tail BlaugelB EPS може поєднуватися з формою та нескінченно розширеним. Поєднання хвоста Ластівки оптимізує відходи, поки їх повністю не вистачає, а належна довжина профілю 1175 мм ідеально підходить для транспортування та зберігання (Європак). Завдяки невеликим розміром ваги та компактних, профілі ізоляції Blaugelb EPS неперевершені з точки зору швидкості та простоти використання. При підключенні до ручки та канавки, обидва підключені профілі -uup профілі Blaugelb EPS мають ручку на одному краю та канавку на іншій і може бути поєднуватися з висотою.
⚙ Переваги ізоляції плінтуса за допомогою BlaugelB EPS Plinth Insulation Profile:
✅ Ефективний ефект ізоляції з високим потенціалом заощадження
✅ комфортом життя
✅ базовою уподобанням, що заважає базі. Волога та розробка цвілі
⚙ Переваги комбінування на хвості Ластівки:
✅ Швидка та проста та проста установка
✅ мобільний - для майстерні або для будівельного сайту
Не металознавство Metal