ВІДЕОДОМОФОН 2 7" РК-МОНІТОРИ З КОДОВИМ ШИФРОВАЧЕМ НАВЕС ВОРОТА + ВОРОТА
- Час доставки: 7-10 днів
- Стан товару: новий
- Доступна кількість: 35
Оплачивая «ВИДЕОИНТЕРФОН 2 7-ДЮЙМОВОГО ЖК-МОНИТОРА С ШИФРОВАТЕЛЕМ КОДА GATE + GATE», вы можете быть уверены, что данное изделие из каталога «Домофоны и видеодомофоны» будет доставлено из Польши и проверено на целостность. В цене товара, указанной на сайте, учтена доставка из Польши. Внимание!!! Товары для Евросоюза, согласно законодательству стран Евросоюза, могут отличаться упаковкой или наполнением.
ВІДЕОДОМОФОН 2 7" РК-МОНІТОРИ З ШИФРОВАЧЕМ КОДУ ВОРОТА НА ДАХ + ВОРОТА
✨ КОМПЛЕКТ 2x МОНІТОР + 1x ЗОВНІШНЯ ПАНЕЛЬ
МОДЕЛЬ: ORNO OR-VID-VP-1073/W + OR-VID-VP-1069MV/W
➡️ ОСНОВНІ ХАРАКТЕРИСТИКИ НАБОРУ:
⭐ Кольоровий відеодомофон із ультраплоским монітором «вільні руки» (LCD 7") і сенсорною панеллю монітора з підсвічуванням кнопок. Параметри монітора (яскравість і колір, гучність дзвінка та дзвінка) регулюються, а також можна вибрати до 16 звуків дзвінка.
⭐ Зовнішня панель із камерою CMOS підходить для поверхневого монтажу. Крім того, він має захисний козирок, простір для імен та ІЧ-світлодіодне підсвічування, яке забезпечує гарне бачення вночі.
⭐ На зовнішній панелі є цифрова клавіатура (шифратор) з підсвічуванням, яка забезпечує швидкий доступ лише авторизованим особам.
⭐ У комплекті також є функція управління воротами.
⭐ Пристрій живиться постійним струмом від джерела живлення до розетки 15В постійного струму або опціонально від джерела живлення на DIN-рейку OR-VID-VP-1069ZD.
⭐ Електричний удар з постійною напругою 12В і струмом споживання не більше 500мА не діє. вимагають додаткового живлення постачання.
❗️ 2 монітори включені ❗️
➡️ 2x 7" РК-МОНІТОР:
- ультраплоский, без рук, без рук
- кольоровий TFT-РК-дисплей з діагоналлю екрана 7"
- висока роздільна здатність зображення
- монітор із сенсорною панеллю
- плавне регулювання монітора параметри (регульована гучність дзвінка та розмови, а також яскравість і колірний контраст)
- великий вибір звуків дзвоника (16 мелодій на вибір)
- керування електрозамком і воротами безпосередньо з панелі монітора
- попередній перегляд того, що відбувається в полі зору камери без дзвінка ззовні панель
- функція внутрішнього зв'язку (після розширення комплекту додатковим монітором)
- Живлення постійного струму від блоку живлення до розетки: 15V DC 1200mA
- розміри: 216 / 129,7 / 23 мм (ширина/висота/глибина)
➡️ ЗОВНІШНЯ ПАНЕЛЬ З КАМЕРОЮ:
- Кольорова камера CMOS
- вбудований кодер (цифрова клавіатура забезпечує швидкий доступ лише авторизованим особам)
- високоякісний алюмінієвий корпус
- поверхневий монтаж (захисний дах у комплекті)
- місце за назвою
- можливість нічного спостереження (ІЧ-підсвічування)
- широкі кути огляду камери по вертикалі/горизонталі: 64 град. / 96 градусів
- розміри: 63 x 150 x 24 мм (ширина/висота/глибина)
➡️ ЗАГАЛЬНА ІНФОРМАЦІЯ ПРО КОМПЛЕКТ:
- Тип: односімейний
- Тип передачі: провідний
- Тип живлення: мережевий адаптер
- Система підключення: 5-провідний
- Кількість проводів: 5+2
- Електроживлення для електроудару: від зовнішньої панелі
- Автоматичне управління воротами: так
- Можливість розширення за допомогою камери відеоспостереження: ні
➡️ ОПИС КОНСТРУКЦІЇ ТА ФУНКЦІЙ МОНІТОРА:
1 – МІКРОФОН
2 – СИГНАЛ ВИКЛЮЧЕННЯ ЗВУКУ
3 – СИГНАЛІЗАЦІЯ ВИКЛИКУ
4 – СИГНАЛІЗАЦІЯ ЖИВЛЕННЯ
5 – ЕКРАН
6 – КЕРУВАННЯ ВОРОТА
7 – ПОПЕРЕДНІЙ ПЕРЕГЛЯД
8 – ВІДКРИТТЯ ЕЛЕКТРИЧНОГО ЗАМКУ
9 - РОЗМОВА
10 - ДОМОВОРОЗВ'ЯЗОК
11 - МЕНЮ
12 - НАЗАД
13 - ЗАЖИМ ДЛЯ ПІДКЛЮЧЕННЯ ВОРІТ
14 - ЗАЖИМ ДЛЯ ПІДКЛЮЧЕННЯ ЗОВНІШНЬОГО СТАКУ
15 - ЗАЖИМ ДЛЯ ПІДКЛЮЧЕННЯ ДОДАТКОВОГО МОНІТОР
16 – ЗАЖИМ ДЛЯ ПІДКЛЮЧЕННЯ БЛОКУ ЖИВЛЕННЯ
➡️ ОПИС КОНСТРУКЦІЇ ТА ФУНКЦІЙ ЗОВНІШНЬОЇ ПАНЕЛІ:
1 – КАМЕРА
2 – ПІДСВІТЛЕННЯ КАМЕРИ (ІЧ-діоди)
3 – МІКРОФОН
4 – ЦИФРОВА КЛАВІАТУРА
5 – СЕНСОРНА КНОПКА ДЗВІНКИ
6 – МІСЦЕ ДЛЯ ІМЕНІ
7 – ДИНАМІК
8 – ПІДКЛЮЧЕННЯ ТЕРМІНАЛИ
9 – РЕГУЛЮВАННЯ РІВНЯ ГУЧНОСТІ
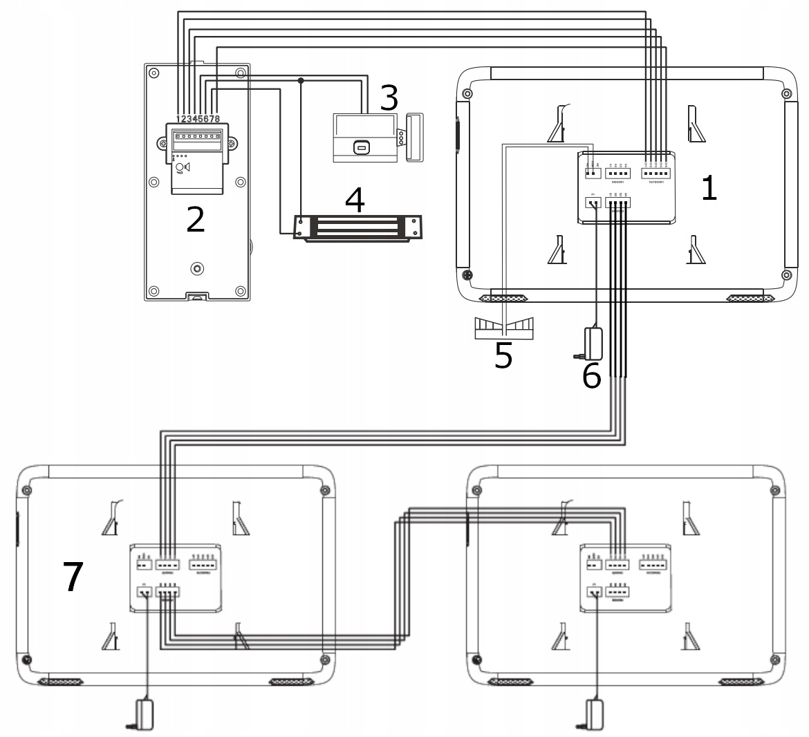
➡️ СХЕМА ПІДКЛЮЧЕННЯ:
1 - МОНІТОР
2 - ЗОВНІШНЯ ПАНЕЛЬ
3 - ЕЛЕКТРИЧНИЙ ЗАМОК (12 В постійного струму макс. 500 мА) - додатковий аксесуар / 4 - ЕЛЕКТРОМАГНІТНА ПЕРЕМИЧКА (12 В постійного струму макс. 250 мА) - додатковий аксесуар
5 - КЕРУВАННЯ ВОРОТАМИ
6 - ДЖЕРЕЛО ЖИВЛЕННЯ, ЩО ВСТАВЛЯЄТЬСЯ ПЛЮСОМ
7 - ДОДАТКОВИЙ МОНІТОР
➡️ КОМПЛЕКТ ВКЛЮЧАЄ:
- Зовнішня панель з камерою та захисним кожухом - 1 шт.
- РК-відеомонітор - 1 шт.
- Кронштейн для кріплення монітора - 1 шт.
- Гвинти та шпильки для кріплення
- 5-метровий кабель - 2 шт.
- Вилки для підключення монітори
- Блок живлення 15VDC/1200mA - 2 шт.
➡️ МОЖЛИВОСТІ РОЗШИРЕННЯ НАБОРУ ДОДАТКОВИМИ ЕЛЕМЕНТАМИ:
- Монітор: OR-VID-VP-1069MV/B - чорний, OR-VID-VP-1069MV/W - білий
- Блок живлення на DIN-рейку: OR-VID-VP-1069ZD
- ЕЛЕКТРИК ЗАМОК
- КАСЕТНА / ЕЛЕКТРИЧНА ПЛАТКА ЗАСУВКИ
➡️ ЧАСТІ ЗАПИТАННЯ ТА ВІДПОВІДІ:
1. Який кабель слід використовувати для підключення монітора до зовнішньої панелі?
Під час проектування електроустановки враховуйте відповідний переріз кабелів:
- до 30 м - рекомендований кабель XzTKMXpw 3 x 2 x 0,5 мм²
- до 30 м до 100 м - рекомендований кабель XzTKMXpw 3 x 2 х 0,8 мм²
2. Який кабель слід використовувати для з’єднання зовнішньої панелі з електричним щитом?
Кабель, що з’єднує електричний щиток із зовнішньою касетою, має бути принаймні 2 x 1 мм²
3. Чи може зовнішня панель піддаватися впливу дощу та снігу?
Так, пристрій має високий рейтинг водонепроникності IP44, тому він може бути підданий впливу погодних умов.
4. Чи потребує електричний щиток додаткового живлення?
Ні, електричний щиток із постійною напругою 12 В постійного струму та споживанням струму не вище 500 мА не потребує додаткового живлення.
Ми рекомендуємо наші електричні щитки:
- OR-EZ-4033 слабкострумовий симетричний, без пам'яті, без блокування
- OR-EZ-4031 Електроударник слабкострумовий симетричний, з замком
- OR-EZ-4030 Слабкострумовий симетричний утилик, з пам'яттю
- OR-EZ-4032 Електроударник слабкострумовий симетричний, з пам'яттю та замком
5. Чи можу я під’єднати кнопку виходу/входу до цього відеодомофона?
Так, кнопка виходу підключена до зовнішньої панелі відеодомофона та може використовуватися для відкриття воріт/дверей, напр. зсередини приміщення.
Ми рекомендуємо наші кнопки виходу:
- OR-ZS-813 Накладний алюмінієвий корпус
- OR-ZS-814 Накладний алюмінієвий корпус, кнопка з підсвічуванням
- OR-ZS-819 Пластиковий корпус для поверхневого монтажу
- OR-ZS-812 Алюмінієвий корпус для вбудованого монтажу, кнопка з підсвічуванням
