Випікайте котел з гранул 8 кВт чистого повітря Ferrole Biopellet Pro Shending
- Час доставки: 7-10 днів
- Стан товару: новий
- Доступна кількість: 21
Оплачивая «Выпекать котел с пеллетом 8 кВт чистый воздух Biopellet Pro» данный товар из каталога «Котлы и печи», вы можете получить дополнительную скидку 4%, если произведете 100% предоплату. Размер скидки вы можете увидеть сразу при оформлении заказа на сайте. Внимание!!! Скидка распространяется только при заказе через сайт.
Котел на пелетах BIOPELLET PRO 8 кВт – екологічне та економічне джерело тепла
- Модель потужністю 2,4–8,0 кВт
- ККД до 96% - найвищий клас енергоефективності
- Пеллетний бак ємністю 105 кг
- Відповідає суворим нормам викидів ECODESIGN
BIOPELLET PRO 8 kW - це сучасний сталевий пелетний котел, призначений для користувачів, які цінують екологію, економію та комфорт використання. Завдяки інтелектуальному управлінню та високій ефективності до 96% це один із найефективніших пристроїв у своєму класі.
Найважливіші переваги:
✅ Екологічне опалення - відповідає ЕКОДИЗАЙНУ
✅ Сучасний пелетний пальник, що самоочищається, з модуляцією потужності
✅ Автоматичний контроль запалювання та горіння
✅ Можливість дистанційного керування (смартфон/планшет)
✅ Тихий і ефективний витяжний вентилятор, що забезпечує оптимальний потік повітря
✅ Компактні розміри - резервуар встановлено над камерою згоряння (просте встановлення навіть у невеликих котельних)
✅ Легкий доступ до компонентів - швидке очищення та обслуговування
Стандартне обладнання:
- Автоматизація з інтуїтивно зрозумілою РК-панеллю
- Циркуляційний насос центрального опалення
- Розширювальний бак 5 л
- Запобіжний клапан, термостат
- Вбудована сталева водяна сорочка
- Підключення до бака гарячої води. і додатковий кімнатний контролер
Технічні дані - BIOPELLET PRO 8 кВт:
- Потужність обігріву: 2,4 - 8,0 кВт
- Середнє споживання пелет: 1,4 кг/год
- Номінальний ККД: 94%
- ККД при зниженій потужності: 96%
- Резервуар для пелет: 105 кг
- Ємність водяної сорочки: 35 л
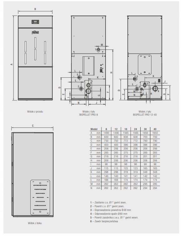
- Розміри (В x Ш x Г): 1490 x 600 x 750 мм
- Вага: 220 кг
- З'єднання центральні нагрівання: 1"
- Температура води (макс.): 90°C
- Робочий тиск (макс.): 2 бар
- Електроживлення: 230 В / 50 Гц
Чому це того варте?
- Екологічне джерело тепла - економія рахунків і турбота про навколишнє середовище
- Сучасна автоматизація - повний контроль над опаленням з мобільного пристрою
- Надійне та просте управління - все, що вам потрібно, уже в стандартній комплектації!
