ВІШАЛКА WBD BEAM ЛІВА/ПРАВА 30x130 CERT
- Час доставки: 7-10 днів
- Стан товару: новий
- Доступна кількість: 1331
Просматривая «ВІШАЛКА WBD BEAM ЛІВА/ПРАВА 30x130 CERT», вы можете быть уверены, что данный товар из каталога «Тюрьма и софиты» будет доставлен из Польши и проверен на целостность. В цене товара, указанной на сайте, учтена доставка из Польши. Внимание!!! Товары для Евросоюза, согласно законодательству стран Евросоюза, могут отличаться упаковкой или наполнением.
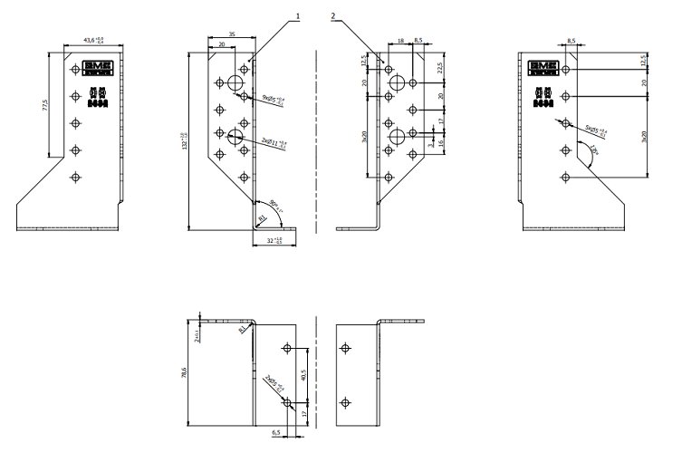
ОПОРА РОЗДІЛЬНОЇ БАЛКИ WBD130 ОЦИНКОВАНА
ВИБЕРІТЬ: ЛІВА АБО ПРАВА
Ціна вказана за 1 шт. вішалки (лівої чи правої)
Роздільна підвісна система дозволяє встановлювати балки нестандартних розмірів.
Кронштейни виготовлені з листової оцинкованої сталі товщиною 2 мм.
Вони забезпечують міцне, естетичне та професійне з'єднання різних елементів конструкції. Балкові опори можна використовувати як з’єднання в усіх дерев’яних конструкціях. Приклади застосування: канадські будинки, дахові конструкції, опалубка. Додатковий великий діаметр отворів означає, що їх також можна використовувати для кріплення балок до бетонної стіни.
ПАРАМЕТРИ:
- ширина - 30мм
- висота -130 мм
- глибина - 75мм
- товщина листа - 2мм
- матеріал - DX51D + Z275
- Антикорозійний захист- оцинкований
- кількість отворів - 18 отворів ø5 мм, 2 отвори ø11 мм
- вантажопідйомність - 26,96кН
ВИПРАВЛЕННЯ:
- Кільцеві цвяхи ANCOR ø4
- столярні гвинти для з’єднувачів
- Шурупи H6K ø10 мм
- Сталеві розпірні болти M10
- Клеєні анкери М10 тощо.
ТЕХНІЧНИЙ МИСЛЕНЬ:
ТЕХНІЧНА ДОКУМЕНТАЦІЯ:
- Європейське технічне схвалення
- Декларація продуктивності
- Сертифікат відповідності заводського контролю виробництва
Всі пропоновані нами вішалки характеризуються найвищою якістю і можуть сміливо використовуватися в будівництві. Ми докладаємо всіх зусиль, щоб продукти, які постачаються нашим підрядникам, були безпечними та адаптованими до конкретних завдань.
